ГОСТ Р 56077-2014 Методы аэродинамических испытаний конструкций и оборудования противодымной защиты зданий
ГОСТ Р 56077-2014
НАЦИОНАЛЬНЫЙ СТАНДАРТ РОССИЙСКОЙ ФЕДЕРАЦИИ
МЕТОДЫ АЭРОДИНАМИЧЕСКИХ ИСПЫТАНИЙ КОНСТРУКЦИЙ И ОБОРУДОВАНИЯ ПРОТИВОДЫМНОЙ ЗАЩИТЫ ЗДАНИЙ
Methods of aerodynamic tests of the elements of engineering equipments smoke protection of buildings
МКС 13.220.01
Дата введения 2015-03-01
Предисловие
Предисловие
1 РАЗРАБОТАН Федеральным государственным бюджетным учреждением "Всероссийский ордена "Знак Почета" научно-исследовательский институт противопожарной обороны" МЧС России (ФГБУ ВНИИПО МЧС России)
2 ВНЕСЕН Техническим комитетом по стандартизации ТК 274 "Пожарная безопасность"
3 УТВЕРЖДЕН И ВВЕДЕН В ДЕЙСТВИЕ Приказом Федерального агентства по техническому регулированию и метрологии от 24 июля 2014 г. N 825-ст
4 В настоящем стандарте учтены основные нормативные положения следующих европейских стандартов:
ЕН 12238:2001* "Вентиляция зданий. Воздухоприемное устройство (в вытяжном отверстии). Аэродинамические испытания и определение характеристик смешанного потока" (EN 12238:2001 "Ventilation for buildings - Air terminal devices - Aerodynamic testing and rating for mixed flow application", NEQ);
ЕН 12101-2:2003 "Системы контроля над дымом и теплом. Часть 2. Вытяжные вентиляторы для удаления природного дыма и тепла. Технические условия" (EN 12101-2:2003 "Smoke and heat control systems - Part 2: Specification for natural smoke and heat exhaust ventilators", NEQ)
5 ВВЕДЕН ВПЕРВЫЕ
6 ПЕРЕИЗДАНИЕ. Сентябрь 2019 г.
Правила применения настоящего стандарта установлены в статье 26 Федерального закона от 29 июня 2015 г. N 162-ФЗ "О стандартизации в Российской Федерации". Информация об изменениях к настоящему стандарту публикуется в ежегодном (по состоянию на 1 января текущего года) информационном указателе "Национальные стандарты", а официальный текст изменений и поправок - в ежемесячном информационном указателе "Национальные стандарты". В случае пересмотра (замены) или отмены настоящего стандарта соответствующее уведомление будет опубликовано в ближайшем выпуске ежемесячного информационного указателя "Национальные стандарты". Соответствующая информация, уведомление и тексты размещаются также в информационной системе общего пользования - на официальном сайте Федерального агентства по техническому регулированию и метрологии в сети Интернет (www.gost.ru)
1 Область применения
1 Область применения
1.1 Настоящий стандарт устанавливает требования к методам аэродинамических испытаний следующих конструкций и оборудования противодымной защиты зданий:
- дымовых люков систем вытяжной противодымной вентиляции с естественным побуждением тяги (далее - дымовых люков);
- дверей противопожарных, дверей противопожарных в дымогазонепроницаемом исполнении, дверей шахт лифтов, дверей с ненормируемым пределом огнестойкости (далее - дверей различного функционального назначения);
- нормально закрытых и нормально открытых противопожарных клапанов вентиляционных систем (далее - противопожарных клапанов).
1.2 Цель испытаний по данному стандарту состоит в экспериментальном определении коэффициентов расхода дымовых люков и противопожарных клапанов и удельного сопротивления воздухопроницанию противопожарных клапанов и дверей различного функционального назначения.
2 Нормативные ссылки
2 Нормативные ссылки
В настоящем стандарте использованы нормативные ссылки на следующие стандарты:
ГОСТ 12.1.019 Система стандартов безопасности труда. Электробезопасность. Общие требования и номенклатура видов защиты
ГОСТ 12.2.003 Система стандартов безопасности труда. Оборудование производственное. Общие требования безопасности
ГОСТ 12.3.018 Система стандартов безопасности труда. Системы вентиляционные. Методы аэродинамических испытаний
ГОСТ Р 8.585 Государственная система обеспечения единства измерений. Термопары. Номинальные статические характеристики преобразования
Примечание - При пользовании настоящим стандартом целесообразно проверить действие ссылочных стандартов в информационной системе общего пользования - на официальном сайте Федерального агентства по техническому регулированию и метрологии в сети Интернет или по ежегодному информационному указателю "Национальные стандарты", который опубликован по состоянию на 1 января текущего года, и по выпускам ежемесячного информационного указателя "Национальные стандарты" за текущий год. Если заменен ссылочный стандарт, на который дана недатированная ссылка, то рекомендуется использовать действующую версию этого стандарта с учетом всех внесенных в данную версию изменений. Если заменен ссылочный стандарт, на который дана датированная ссылка, то рекомендуется использовать версию этого стандарта с указанным выше годом утверждения (принятия). Если после утверждения настоящего стандарта в ссылочный стандарт, на который дана датированная ссылка, внесено изменение, затрагивающее положение, на которое дана ссылка, то это положение рекомендуется применять без учета данного изменения. Если ссылочный стандарт отменен без замены, то положение, в котором дана ссылка на него, рекомендуется применять в части, не затрагивающей эту ссылку.
3 Термины и определения
3 Термины и определения
В настоящем стандарте применены следующие термины с соответствующими определениями:
3.1 расход воздуха: Физическая величина, равная пределу отношения приращения массы или объема воздуха, проходящего в трубопроводе через сечение, перпендикулярное направлению скорости потока, к интервалу времени, за который это приращение произошло, при неограниченном уменьшении интервала времени.
3.2 расходомерное устройство: Измерительный прибор или совокупность приборов, предназначенных для измерения расхода газа.
3.3 коэффициент расхода: Отношение действительного расхода к расходу, равному произведению площади наименьшего сечения на скоростной эквивалент перепада давления.
3.4 прямой участок трубопровода: Участок трубопровода, ось которого прямолинейна, а площадь и форма поперечного сечения постоянны, что обеспечивает стабилизацию профиля скоростей потока.
3.5 измерительный участок трубопровода: Отрезок трубопровода между двумя измерительными сечениями.
4 Обозначения и сокращения
4 Обозначения и сокращения
4.1 КПД - комбинированный приемник давления.
4.3 ТЭП - термоэлектрический преобразователь.
5 Сущность методов и режимы испытаний
5 Сущность методов и режимы испытаний
5.1 Экспериментальное определение коэффициента расхода испытываемого образца осуществляется посредством принудительного перемещения регулируемого воздушного потока через конструкцию образца с одновременной фиксацией величин действительного расхода воздуха в проходном сечении этого образца.
5.2 Экспериментальное определение удельного сопротивления воздухопроницанию испытываемого образца путем создания заданного перепада давления на конструкции образца в его закрытом положении и одновременной фиксации величины действительного расхода воздуха, фильтрующегося через неплотности испытываемой конструкции.
5.3 В зависимости от конструктивного исполнения и функционального назначения испытываемых конструкций по методу, установленному в 5.2, образец последовательно подлежит установке на стенд одной, затем другой стороной.
5.4 С учетом отличительных признаков конструкций дымовых люков, противопожарных клапанов и дверей различного функционального назначения, условия и режимы их испытаний по данному стандарту могут быть частично изменены и (или) дополнены в соответствии с техническими данными и характеристиками, регламентированными разработчиком (изготовителем).
6 Стендовое оборудование и измерительная аппаратура
6 Стендовое оборудование и измерительная аппаратура
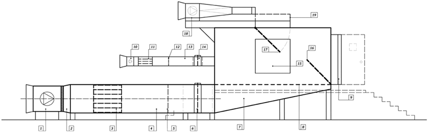
6.1 Стенд для проведения аэродинамических испытаний конструкций и оборудования систем противодымной вентиляции зданий состоит (в соответствии с рисунком А.1 приложения А) из измерительной пневмокамеры 7 с габаритными размерами не менее 5000
4000
2500 мм.
В верхней части пневмокамеры имеется технологическое отверстие 19 сечением не менее 1500x1500 мм, предназначенное для установки конструкций дымовых люков. Контроль за процессом испытаний во внутренней полости пневмокамеры осуществляется через смотровое окно 15. На боковой стороне пневмокамеры имеется технологический проем сечением не менее 1500x2200 мм, с закрепленным монтажным узлом, предназначенным для установки образцов с вертикальной ориентацией 9.
6.2 Подача воздуха в пневмокамеру при определении коэффициента расхода по 5.1 производится с помощью нагнетательного вентиляционного узла, состоящего из осевого вентилятора 1, который с помощью мягкой вставки, соединен с мерным участком воздуховода 4, содержащим при необходимости выравнивающее устройство 3. Регулирование скорости воздушного потока производится с помощью преобразователя частоты вентилятора 1, установленного в цепи электроснабжения, а также заслонкой(ами) воздушного клапана 6. Мерный участок 13 подлежит отключению посредством закрытия заслонки(ок) воздушного клапана 14. Не задействованный при испытаниях монтажный проем 9 или 19 подлежит перекрытию соответствующей заслонкой 16 или 17.
Для стабилизации потока в нижней части измерительной камеры установлено выравнивающее воздухораспределительное устройство 8.
Имитация ветрового напора осуществляется с помощью вентиляционной установки 18, смонтированной на внешней поверхности пневмокамеры, состоящей из осевого вентилятора низкого давления и диффузора с выравнивающим устройством, обеспечивающим подачу наружного воздуха в плоскости, параллельной плоскости монтажного проема 19, с равномерно распределенной скоростью по всей ширине монтажного проема. Регулирование скорости воздушного потока осуществляется с помощью преобразователя частоты вентилятора, установленного в цепи электроснабжения.
6.3 Подача воздуха в пневмокамеру при определении удельного сопротивления воздухопроницанию по 5.2 осуществляется с помощью вентиляционного узла, состоящего из осевого вентилятора 10, выравнивающего устройства 11 и мерного участка воздуховода 13.
Регулирование скорости воздушного потока осуществляется с помощью преобразователя частоты вентилятора 10, установленного в цепи электроснабжения, а также заслонки(ок) воздушного клапана 14.
Мерный участок 4 подлежит отключению посредством закрытия заслонки(ок) воздушного клапана 6. Не задействованный при испытаниях монтажный проем 9 или 19 подлежит перекрытию соответствующей заслонкой 16 или 17.
6.4 Минимальное значение расхода воздушного потока, создаваемого вентиляционной установкой при проведении испытаний по 5.1, должно быть не более 5000 м
/ч, максимальное - не менее 40000 м
/ч.
6.5 Минимальное значение расхода воздушного потока, создаваемого вентиляционной установкой при проведении испытаний по 5.2, должно быть не более 100 м
/ч, максимальное - не менее 2500 м
/ч.
6.6 Минимальное значение перепада давления на испытываемых образцах противопожарных клапанов и дверей различного функционального назначения по методу 5.2 должно быть не более 20,0 Па, максимальное - не менее 500,0 Па.
6.7 Вентиляционная установка 18 должна обеспечивать равномерно распределенную подачу воздуха со скоростью в диапазоне от 1,0 до 20 м/с. Отклонение локальных значений скоростей воздушного потока в различных точках выбросного сечения установки не должно превышать 10%.
6.8 Мерные участки воздуховодов 4, 13 должны быть прямыми и иметь длину не менее 20 D
. При выполнении такого условия допускается не предусматривать установку выравнивающих устройств 3, 11.
Допускается уменьшение длины мерного участка воздуховода до 3 D
, при условии установки выравнивающего устройства 3, 11 осевая длина каждой ячейки которого должна быть не менее 6
ячейки.
6.9 Плоскость мерного сечения скорости воздушного потока 5, 12 должна находиться на расстоянии не менее 1,5
от плоскости присоединения мерного участка воздуховода к пневмокамере стенда 7.
6.10 Воздушные клапаны 6, 14 совместно с преобразователями частоты в составе цепей электроснабжения вентиляторов 1, 10 должны обеспечивать заданные по 6.4-6.6 диапазоны значений при включенных вентиляторах.
6.11 Испытательный стенд подлежит оснащению средствами измерения температуры, интервалов времени, скорости воздушных потоков и давлений.
6.12 Для измерения расхода воздуха в мерных сечениях 5, 12 следует использовать КПД в соответствии с ГОСТ 12.3.018 с диаметром приемной части не более 8% ширины проходного сечения образца. Координаты точек размещения КПД в мерном сечении следует определять в соответствии с ГОСТ 12.3.018. Площадь поперечного сечения в мерных участках должна подбираться по условию обеспечения средней скорости воздушного потока более 6 м/с.
6.13 Для измерения температуры в указанных по 6.12 сечениях следует применять хромель-алюмелевые ТЭП по ГОСТ Р 8.585 с диаметром электродов не более 0,7 мм.
6.14 ТЭП в мерных сечениях 5, 12 должны располагаться на расстоянии не более 0,2d от оси мерного участка воздуховода и от расходомерных устройств по 6.12, где d - диаметр мерного участка воздуховода.
6.15 Для регистрации перепада давления воздушной среды следует применять дифференциальные манометры класса точности не ниже 1,0 с диапазоном измеряемых значений по 6.6. Количество точек отбора должно быть не менее трех.
6.16 Для измерения скорости воздуха на выходе из вентиляционной установки 18 должны применятся крыльчатые анемометры с диаметром приемной части не менее 50 мм и рабочим диапазоном измерений от 1,0 до 20,0 м/с. Класс точности крыльчатых анемометров должен быть не ниже 1,0, количество точек измерения должно приниматься не менее трех.
6.17 Для измерения интервалов времени должны использоваться секундомеры класса точности не менее 2,0.
7 Подготовка к испытаниям
7 Подготовка к испытаниям
7.1 К испытаниям допускаются образцы дымовых люков, противопожарных клапанов и противопожарных дверей различного функционального назначения, поставляемые в сборе, включая предусмотренные конструкторской документацией разработчика термоизоляцию, узлы крепления, уплотнения, дополнительно установленные аэродинамические элементы.
7.2 Габаритные размеры испытываемых образцов дымовых люков, противопожарных клапанов и дверей различного функционального назначения должны быть не более установочных размеров монтажных проемов испытательного стенда.
7.3 Образцы, поставленные для испытаний, должны соответствовать конструкторской документации. Степень соответствия устанавливается входным контролем.
7.4 Плотность измерительной камеры стенда по величине утечек и подсосов воздуха определяется предварительно и должна составлять не более 0,01 кг/с при избыточном давлении (разрежении) во внутреннем объеме камеры (100±5) Па по отношению к окружающей среде, для чего закрытию подлежат воздушный клапан 6 и заслонки 16, 17 и включению (последовательно) на нагнетание и разрежение вентилятор 10. Определение утечек (подсосов) производится на мерном участке стенда 13 через 120 с после включения вентилятора.
7.5 Для проведения испытания по 5.1 образец дымового люка или противопожарного клапана в открытом положении устанавливают в монтажном проеме испытательного стенда 19 в соответствии с технической документацией предприятия-изготовителя (см. рисунок А.2 приложения А). Мерный участок 13 подлежит отключению через воздушный клапан 14. Незадействованный монтажный проем 9 подлежит закрытию (герметизации) заслонкой 16.
7.6 При испытании дымового люка дополнительно с помощью вентиляционной установки 18 воспроизводится ветровая нагрузка в заданном производителем диапазоне значений.
7.7 Для проведения испытания по 5.2 образец противопожарного клапана или двери устанавливается в монтажном проеме измерительной камеры стенда 9 в закрытом положении, в соответствии с представленной технической документацией предприятия-изготовителя (см. рисунок А.3 приложения А). Мерный участок 4 подлежит отключению через воздушный клапан 6. Не задействованный монтажный проем 19 подлежит закрытию (герметизации) заслонкой 17.
7.8 В случае предъявления к конструкциям испытываемых образцов особых требований, в соответствии с технической документацией, возможно проведение испытаний как при вертикальном, так и при горизонтальном расположении.
8 Последовательность проведения испытаний
8 Последовательность проведения испытаний
8.1 Испытания должны проводиться при температуре окружающей среды от 0°С до 40°С в том случае, если в технической документации на изделие не приведены другие условия на испытания.
8.2 Положения створок воздушных клапанов, заслонок должны соответствовать требованиям 7.5 при проведении испытаний по 5.1 или требованиям 7.7 при проведении испытаний по 5.2.
8.3 При испытаниях по 5.1 осуществляется регистрация значений статического давления в объеме измерительной камеры при заданных производителем диапазонах значений расхода воздуха, проходящего через испытуемый образец (см. рисунок А.2 приложения А).
8.4 При проведении испытания по 5.2 осуществляется регистрация значений расхода воздуха в мерном сечении 12 при заданных производителем диапазонах значений перепада давления на испытуемом образце (см. рисунок А.3 приложения А).
8.5 Все измерения следует проводить не менее чем через 120 секунд после запуска соответствующей вентиляционной установки испытательного стенда и выхода на стационарный режим работы.
8.6 Во время испытаний также регистрируют температуру воздуха в мерных сечениях 5, 12.
8.7 Для каждого заданного значения по 8.3, 8.4 производится не менее трех измерений с интервалом не менее 30 с. Отклонение установленных значений расхода воздуха по 8.3, значений перепада давления по 8.4 не должно превышать 5%.
8.8 Измерения признаются удовлетворительными при отклонении полученных значений друг от друга не более чем на 15%.
9 Обработка результатов испытания
9 Обработка результатов испытания
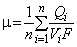
9.1 Фактическое значение коэффициента расхода дымового люка или противопожарного клапана определяется по формулам:
где n - число измерений при испытании;
- значение расхода в i-м измерении, м
/с;
F - установочная площадь испытываемого изделия, м
;
- средняя скорость воздушного потока в сечении испытываемого изделия, м/с;
где
- средняя скорость в мерном сечении 5, м/с;
- площадь мерного сечения 5, м
.
Средняя скорость воздушного потока в сечении испытываемого изделия определяется соотношением
где
- статическое давление в полости пневмокамеры в i-м измерении, Па;
- температура воздушного потока в мерном сечении, °С;
- статическое давление наружной среды, Па.
______________
* Формула и экспликация к ней соответствуют оригиналу. - Примечание изготовителя базы данных.
9.2 Приведенное удельное сопротивление воздухопроницанию
противопожарных нормально открытых клапанов и противопожарных дверей различного функционального назначения по результатам проведенных измерений определяется по следующей формуле
где k - число измерений при испытании;
- площадь проходного сечения испытываемого образца, м
;
- разность давлений на образце в j-м измерении, Па;
- массовый расход воздуха, проходящего через образец, в j-м измерении, кг/с;
- плотность воздуха, фильтрующегося через неплотности образца в j-м измерении, кг/м
;
- плотность воздуха при температуре 20°С, кг/м
.
9.3 Приведенное удельное сопротивление воздухопроницанию противопожарных нормально закрытых клапанов по результатам проведенных измерений определяется по формуле
10 Отчет об испытании
10 Отчет об испытании
Отчет об испытании должен содержать следующие данные:
- наименование организации, проводящей испытания;
- наименование и адрес заказчика;
- характеристика объекта испытаний;
- метод испытания (описание или ссылка);
- описание процедуры испытания;
- характеристики испытательного оборудования;
- результаты испытаний;
- оценка результатов испытаний.
11 Техника безопасности
11 Техника безопасности
11.1 При проведении аэродинамических испытаний должны соблюдаться требования безопасности и производственной санитарии согласно ГОСТ 12.2.003 и ГОСТ 12.1.019.
11.2 К испытанию допускаются лица, ознакомленные с техническим описанием и инструкцией по эксплуатации испытательного стенда.
11.3 Перед проведением испытаний необходимо проверить надежность креплений и соединений испытательного оборудования.
11.4 Все быстродвижущиеся и вращающиеся части стендовой установки должны иметь ограждения.
Приложение А (обязательное). Схема испытательного стенда и размещение стендового оборудования
Приложение А
(обязательное)
Схема испытательного стенда и размещение стендового оборудования
1 - осевой вентилятор; 2 - воздуховод; 3 - выравнивающее устройство; 4 - мерный участок воздуховода; 5 - мерное сечение; 6 - воздушный клапан; 7 - измерительная камера стенда; 8 - воздухораспределительное устройство; 9 - монтажный проем; 10 - осевой вентилятор; 11 - выравнивающее устройство; 12 - мерное сечение; 13 - мерный участок воздуховода; 14 - воздушный клапан; 15 - смотровое окно; 16 - заслонка; 17 - заслонка; 18 - вентиляционная установка; 19 - монтажный проем
Рисунок А.1 - Схема стенда для проведения аэродинамических испытаний конструкций и оборудования противодымной защиты зданий
Рисунок А.2 - Схема проведения испытаний по определению коэффициента расхода
Рисунок А.3 - Схема проведения испытаний по определению фактических значений сопротивления воздухопроницанию
| УДК 614.841:006.354 | ОКС 13.220.01 |
| Ключевые слова: противопожарный клапан, дымовой люк, коэффициент расхода, сопротивление воздухопроницанию, метод испытаний |





