СП 484.1311500.2020 Системы противопожарной защиты. Системы пожарной сигнализации и автоматизация систем противопожарной защиты Изм 1

Материал из Аэропро.Вики

СП 484.1311500.2020

СВОД ПРАВИЛ

Системы противопожарной защиты

СИСТЕМЫ ПОЖАРНОЙ СИГНАЛИЗАЦИИ И АВТОМАТИЗАЦИЯ СИСТЕМ ПРОТИВОПОЖАРНОЙ ЗАЩИТЫ

Нормы и правила проектирования

Fire alarm systems and automation of fire protection systems. Designing and regulations rules

          

ОКС 13.220.01

Дата введения 2021-03-01


Предисловие

Предисловие

Цели и принципы стандартизации в Российской Федерации установлены Федеральным законом от 29 июня 2016 г.* N 162-ФЗ "О стандартизации в Российской Федерации", а правила применения сводов правил - Федеральным законом от 27 декабря 2002 г. N 184-ФЗ "О техническом регулировании"

________________

  • Вероятно, ошибка оригинала. Следует читать: Федеральным законом от 29.06.2015 г. N 162-ФЗ "О стандартизации в Российской Федерации". - Примечание изготовителя базы данных.

           

Сведения о своде правил

1 РАЗРАБОТАН И ВНЕСЕН Федеральным государственным бюджетным учреждением "Всероссийский ордена "Знак Почета" научно-исследовательский институт противопожарной обороны Министерства Российской Федерации по делам гражданской обороны, чрезвычайным ситуациям и ликвидации последствий стихийных бедствий" (ФГБУ "ВНИИПО МЧС России")

2 УТВЕРЖДЕН И ВВЕДЕН В ДЕЙСТВИЕ Приказом Министерства Российской Федерации по делам гражданской обороны, чрезвычайным ситуациям и ликвидации последствий стихийных бедствий (МЧС России) от 31 июля 2020 г. N 582

3 ЗАРЕГИСТРИРОВАН Федеральным агентством по техническому регулированию и метрологии 16 сентября 2020 г.

4 ВВЕДЕН ВЗАМЕН СП 5.13130.2009 в части требований к системам пожарной сигнализации и аппаратуре управления установок пожаротушения

Информация о пересмотре или внесении изменений в настоящий свод правил, а также тексты размещаются в информационной системе общего пользования - на официальном сайте разработчика в информационно-телекоммуникационной сети Интернет. Соответствующая информация, уведомление и тексты размещаются также в информационной системе общего пользования - на официальном сайте федерального органа исполнительной власти в сфере стандартизации в информационно-телекоммуникационной сети Интернет (www.gost.ru)

ВНЕСЕНО Изменение № 1, утвержденное и введенное в действие приказом Министерства Российской Федерации по делам гражданской обороны, чрезвычайным ситуациям и ликвидации последствий бедствий (МЧС России) от 27.03.2025 № 252 c 01.09.2025

Изменение № 1 внесено изготовителем базы данных по тексту М.: ФГБУ "РСТ", 2025

Введение

Введение

Настоящий свод правил разработан в соответствии со статьями 54, 83, 84, 103 Федерального закона от 22 июля 2008 г. N 123-ФЗ "Технический регламент о требованиях пожарной безопасности".


1 Область применения

     1 Область применения

1.1 Настоящий свод правил устанавливает нормы и правила проектирования систем пожарной сигнализации и автоматизации противопожарной защиты для зданий, сооружений, оборудования, наружных установок различного назначения, в том числе возводимых в районах с особыми климатическими и природными условиями.

(Измененная редакция, Изм. № 1).

1.2 Для зданий, сооружений, оборудования, наружных установок, к системами пожарной сигнализации и/или автоматизации систем противопожарной защиты которых с учетом специфики обеспечения их пожарной безопасности нормативными документами по пожарной безопасности, согласованными и зарегистрированными в установленном порядке, установлены требования, отличные от требований настоящего свода правил, следует руководствоваться более высокими требованиями, если иное не установлено законодательством Российской Федерации.


2 Нормативные ссылки

     2 Нормативные ссылки

В настоящем своде правил использованы нормативные ссылки на следующие документы:

ГОСТ 34698 Извещатели пожарные. Общие технические требования. Методы испытаний

ГОСТ Р 59638 Системы пожарной сигнализации. Руководство по проектированию, монтажу, техническому обслуживанию и ремонту. Методы испытаний на работоспособность

СП 3.13130 Системы противопожарной защиты. Система оповещения и управления эвакуацией людей при пожаре. Требования пожарной безопасности

СП 6.13130 Системы противопожарной защиты. Электрооборудование. Требования пожарной безопасности

СП 7.13130 Отопление, вентиляция и кондиционирование. Требования пожарной безопасности

СП 486.1311500 Системы противопожарной защиты. Перечень зданий, сооружений, помещений и оборудования, подлежащих защите автоматическими установками пожаротушения и системами пожарной сигнализации. Требования пожарной безопасности

Примечание - При пользовании настоящим сводом правил целесообразно проверить действие ссылочных стандартов и сводов правил в информационной системе общего пользования - на официальном сайте Федерального агентства по техническому регулированию и метрологии в сети Интернет или по ежегодно издаваемому информационному указателю "Национальные стандарты", который опубликован по состоянию на 1 января текущего года, и по соответствующим ежемесячно издаваемым информационным указателям, опубликованным в текущем году. Если ссылочный документ заменен (изменен), то при пользовании настоящим сводом правил следует руководствоваться заменяющим (измененным) документом. Если ссылочный документ отменен без замены, то положение, в котором дана ссылка на него, применяется в части, не затрагивающей эту ссылку.

(Измененная редакция, Изм. № 1).


3 Термины и определения

     3 Термины и определения

В настоящем своде правил применяются термины и их определения, приведенные в [1], [2], нормативных документах по пожарной безопасности, а также следующие термины с соответствующими определениями:

(Измененная редакция, Изм. № 1).

3.1 алгоритм: Порядок приема, обработки, регистрации, логика формирования, отображения и выдачи сигналов, определяемые событиями (комбинацией и/или последовательностью) по контролируемым сигналам.

(Измененная редакция, Изм. № 1).

3.2 (Исключен, Изм. № 1).

3.3 выносное устройство индикации; ВУИ: Техническое средство, предназначенное для световой индикации режима работы пожарного извещателя, выполненное в виде конструктивно обособленного изделия, взаимодействующего с извещателем по линии связи.

(Измененная редакция, Изм. № 1).

3.4 дежурный режим: Состояние технического средства или системы (установки), не находящихся в тревожном режиме или режиме неисправности и способных к выполнению своего функционального назначения.

(Измененная редакция, Изм. № 1).

3.5 единичная неисправность линий связи (электропитания): единичное нарушение работоспособности одной из линий связи (электропитания).

(Измененная редакция, Изм. № 1).

3.6 зона контроля системы пожарной сигнализации: Территория или часть объекта, контролируемая пожарными извещателями, выделенная с целью определения места возникновения пожара, дальнейшего выполнения заданного алгоритма функционирования систем противопожарной защиты.

(Измененная редакция, Изм. № 1).

3.7 зона оповещения о пожаре: Территория, часть или части здания или объекта, в которой осуществляется одновременное оповещение людей о пожаре.

3.8 зона пожаротушения (направление пожаротушения): Часть здания или объекта, в которую управление подачей огнетушащего вещества осуществляется независимо от других частей здания или объекта.

3.9 зона противодымной вентиляции: Часть здания или объекта, в которой процесс создания подпора воздуха или удаления продуктов горения осуществляется независимо от других частей здания или объекта.

3.10 (Исключен, Изм. № 1).

3.11 (Исключен, Изм. № 1).

3.12 (Исключен, Изм. № 1).

3.13 (Исключен, Изм. № 1).

3.14 (Исключен, Изм. № 1).

3.15 (Исключен, Изм. № 1).

3.16 (Исключен, Изм. № 1).

3.17 (Исключен, Изм. № 1).

3.18 исполнительное устройство: Техническое средство, предназначенное для применения в системах пожарной автоматики в качестве активного элемента защиты людей и/или материальных ценностей при пожаре (оповещатель, электропривод насоса, вентилятора, задвижки, клапан противодымной вентиляции, модуль пожаротушения и т.п.).

3.19 канал обнаружения: Совокупность узлов или компонентов извещателя пожарного, контролирующих один из физических параметров окружающей среды, изменяющихся при пожаре.

3.20 линия связи: Проводная, радиоканальная или оптоволоконная линия, расположенная вне корпусов технических средств пожарной автоматики, обеспечивающая взаимодействие между техническими средствами системы пожарной автоматики, между техническими средствами пожарной автоматики и исполнительными устройствами, между системой пожарной автоматики и другими инженерными системами.

(Измененная редакция, Изм. № 1).

3.21 (Исключен, Изм. № 1).

3.22 пожарный пост: Место (помещение и (или) часть помещения), предназначенное для контроля режимов работы и ручного управления системой пожарной автоматики объекта.

(Измененная редакция, Изм. № 1).

3.23 (Исключен, Изм. № 1).

3.24 системная ошибка: Неисправность прибора, вызванная полным или частичным отказом (сбоем) процессора(ов) или устройства хранения информации о конфигурации прибора.

3.25 (Исключен, Изм. № 1).

3.26 (Исключен, Изм. № 1).

3.27 состояние "Автоматика включена": Состояние прибора пожарного управления, при котором пуск (активация) исполнительных устройств (объектов управления) может осуществляться как автоматически при получении сигнала о пожаре, так и вручную.

3.28 состояние "Автоматика отключена": Состояние прибора пожарного управления, при котором пуск (активация) исполнительных устройств (объектов управления) возможен только вручную.

3.29 (Исключен, Изм. № 1).

3.30 (Исключен, Изм. № 1).

3.31 тревожный режим: Режим работы, при котором зафиксировано срабатывание извещателя пожарного, прием сигнала от других технических средств пожарной автоматики, формирующих сигналы о пожаре, и (или) начат алгоритм управления исполнительными устройствами.

(Измененная редакция, Изм. № 1).

3.32 устройство дистанционного пуска: Техническое средство, предназначенное для ручного пуска (активации) систем противопожарной защиты (пожаротушения, противодымной защиты, оповещения, внутреннего противопожарного водопровода и т.д.), выполненное в виде конструктивно оформленной кнопки, тумблера, переключателя или иного средства коммутации и обеспечивающее взаимодействие с прибором пожарным управления по линии связи.

3.33 функциональный модуль: Компонент блочно-модульного прибора, выполняющий его отдельную функцию или набор функций.

3.34 линия электропитания: Проводная или оптоволоконная линия, предназначенная для обеспечения электроэнергией (электроснабжением) технических средств систем пожарной автоматики.

(Введен дополнительно, Изм. № 1).

3.35 зона противопожарной защиты: Часть объекта защиты, в которой осуществляется функционирование однотипной системы противопожарной защиты (активная защита людей и (или) материальных ценностей при пожаре) независимо от других частей объекта защиты.

Примечание - На одной и той же территории или части объекта защиты могут одновременно функционировать несколько разнотипных систем противопожарной защиты.

(Введен дополнительно, Изм. № 1).


4 Сокращения

     4 Сокращения

В настоящем своде правил применены следующие сокращения:

АСУ ТП - автоматизированная система управления технологическим процессом;

АУП - автоматическая установка пожаротушения;

ВПВ - внутренний противопожарный водопровод;

ВУИ - выносное устройство индикации;

ГЖ - горючая жидкость;

ГОТВ - газовое огнетушащее вещество;

ЗКСПС - зона контроля системы пожарной сигнализации;

ИБЭ - источник бесперебойного электропитания;

ИП - извещатель пожарный;

ИПР - извещатель пожарный ручной;

ЛВЖ - легковоспламеняющаяся жидкость;

ПАЗ - противоаварийная защита;

ППКП - прибор приемно-контрольный пожарный;

ППКУП - прибор приемно-контрольный и управления пожарный;

ППУ - прибор пожарный управления;

СКУД - система контроля и управления доступом;

СО-ПП - спринклерный ороситель с принудительным пуском;

СОУЭ - система оповещения и управления эвакуацией людей при пожаре;

СПЖ - сигнализатор потока жидкости;

СПДВ - система противодымной вентиляции;

СПДЗ - система противодымной защиты;

СПА - система пожарной автоматики;

СПИ - система передачи извещений;

СПЗ - система противопожарной защиты;

СПС - система пожарной сигнализации;

ТД - техническая документация;

УДП - устройство дистанционного пуска;

ЗПЗ - зона противопожарной защиты.

(Измененная редакция, Изм. № 1).


5 Общие положения

     5 Общие положения

5.1 СПА должны проектироваться на основе нормативных правовых актов Российской Федерации и нормативных документов по пожарной безопасности.

(Измененная редакция, Изм. № 1).

5.2 СПА должны проектироваться исходя из условия взаимодействия входящих в нее систем противопожарной защиты, а также обеспечения единства СПА защищаемого объекта. Под объектом в настоящем своде правил понимается единый недвижимый комплекс в соответствии с [3], здание, сооружение, наружная установка, оборудование. Определение конкретного типа объекта защиты определяется заданием на проектирование с учетом требований нормативных документов по пожарной безопасности.

(Измененная редакция, Изм. № 1).

5.3 Единичная неисправность линий связи между ППКП, ППУ, ППКУП, функциональными модулями, ИБЭ, а также единичная неисправность линий электропитания не должны оказывать влияние на возможность контроля (отображения сигналов о работе) и ручного управления СПА на пожарном посту, за исключением случаев, предусмотренных настоящим сводом правил.

(Измененная редакция, Изм. № 1).

5.4 СПА должна быть спроектирована таким образом, чтобы в результате единичной неисправности линий связи или электропитания был возможен отказ только автоматического или ручного управления одной однотипной ЗПЗ (пожаротушения, оповещения, противодымной вентиляции, внутреннего противопожарного водопровода). Потеря автоматического управления одной однотипной ЗПЗ в результате единичной неисправности линий связи не должна оказывать влияние на возможность ручного управления однотипной ЗПЗ с помощью органов управления ППУ (ППКУП) и УДП этой же ЗПЗ.

Единичная неисправность линий связи СПА между СПС и СОУЭ, а также между АУП и СОУЭ не должна оказывать влияние на формирование сигналов запуска СОУЭ.

           

(Измененная редакция, Изм. № 1).

5.5 Технические средства СПА следует применять в соответствии с требованиями ТД изготовителя (в части, не противоречащей настоящему своду правил), с учетом климатических, механических, электромагнитных и других воздействий в местах их размещения, а также при прохождении в установленном порядке процедуры оценки соответствия. При размещении во взрывоопасных зонах технические средства должны иметь соответствующее исполнение. При невозможности определения характеристик возможных воздействий в местах размещения технических средств они могут быть приняты согласно заданию на проектирование. При применении ППКП или ППКУП совместно с другими техническими средствами (ИП, исполнительными устройствами) должна учитываться возможность регистрации всех предусмотренных в ТД на ППКП или ППКУП извещений (применительно к конкретной линии связи) во всем диапазоне значений тока потребления в линии связи, указанной в ТД на ППКП или ППКУП.

(Измененная редакция, Изм. № 1).

5.6 Для построения СПА должны применяться технические средства, не требующие механической и/или электротехнической доработки. Допускается применение устройств неполной заводской готовности, если механическая и/или электротехническая доработка предусмотрены ТД производителя.

5.7 Использование при эксплуатации технических средств СПА монтажных устройств (шкафов, боксов и прочих) и дополнительных аксессуаров возможно только при условии наличия в ТД изготовителя технического средства СПА информации о допустимости применения монтажных устройств (шкафов, боксов и прочих) и дополнительных аксессуаров, а также их параметров (материал, габаритные размеры, а также иные параметры, способные оказать влияние на функционирование технического средства).

(Измененная редакция, Изм. № 1).

5.8 Линии связи, линии электропитания, электропитание технических средств СПА следует выполнять в соответствии с СП 6.13130, с учетом требований настоящего свода правил по ограничению влияния единичной неисправности.

(Измененная редакция, Изм. № 1).

5.9 Заземление (зануление) технических средств СПА следует выполнять в соответствии с требованиями ТД изготовителей технических средств и нормативными документами, действующими в данной области.

5.10 Возможность применения радиоканальных технических средств определяется в соответствии с характеристиками защищаемого объекта и данными производителя, приведенными в ТД на радиоканальные устройства.

5.11 Объект должен быть разделен на ЗКСПС и ЗПЗ согласно требованиям настоящего свода правил, а также сводов правил и стандартов, устанавливающих требования к соответствующим СПЗ.

(Измененная редакция, Изм. № 1).

5.12 ППКП и ППУ, функциональные модули индикации и управления, ИБЭ следует устанавливать на пожарном посту. Допускается установка указанных устройств в других помещениях при одновременном выполнении условий:

а) обеспечение указанными устройствами уровня доступа 2 (для лиц, ответственных за пожарную безопасность объекта, т.е. лиц, уполномоченных на принятие решений по изменению режимов и состояний работы технических средств) и уровня доступа 3 (для лиц, осуществляющих техническое обслуживание и наладку СПА объекта);

б) обеспечение передачи всех извещений, предусмотренных указанными устройствами, на пожарный пост с целью отображения световой индикации и звуковой сигнализации, а также обеспечения функций ручного управления, регламентируемых национальными и межгосударственными стандартами.

Примечание - Описания уровней доступа приведены в ГОСТ Р 59638.

           

(Измененная редакция, Изм. № 1).

5.13 Размещение ППКП, ППУ, ППКУП, функциональных модулей, ИБЭ на пожарном посту следует предусматривать в местах, позволяющих осуществлять визуальный контроль за световой индикацией и ручное управление ими, а также техническое обслуживание.

ППКП, ППУ, ППКУП, функциональные модули, ИБЭ следует размещать таким образом, чтобы высота от уровня пола до органов управления и индикации была от 0,75 до 1,8 м. При отсутствии органов управления на устройствах, устанавливаемых вне пожарного поста, высота их установки не регламентируется.

ППКП, ППУ, ППКУП, функциональные модули индикации и управления, ИБЭ должны быть размещены на пожарном посту таким образом, чтобы обеспечивалась возможность наблюдения за ними из одной точки. Расстояние от точки наблюдения до самого удаленного устройства не должно превышать 5 м.

           

(Измененная редакция, Изм. № 1).

5.14 ППКП, ППУ, ППКУП, функциональные модули, ИБЭ следует устанавливать на стенах, перегородках, столах и конструкциях согласно ТД изготовителей.

При размещении ППКП, ППУ, ППКУП, функциональных модулей и ИБЭ рядом с ними должно быть предусмотрено свободное пространство в соответствии с ТД изготовителей для обеспечения доступа при техническом обслуживании. Если необходимые данные не указаны в ТД, то расстояние от ППКП, ППУ, ППКУП, функциональных модулей и ИБЭ по вертикали и горизонтали до углов стен или других ППКП, ППУ, ППКУП, функциональных модулей и ИБЭ должно составлять не менее 50 мм, а свободное пространство с лицевой стороны должно составлять не менее 600 мм.

Электротехнические короба, трубы и лотки могут располагаться на расстоянии менее 50 мм от ППКП, ППУ, ППКУП, функциональных модулей и ИБЭ, при этом не должны перекрываться имеющиеся в корпусах данных технических средств вентиляционные отверстия, а также должен сохраняться доступ для открытия корпуса при проведении технического обслуживания и (или) ремонта.

           

(Измененная редакция, Изм. № 1).

5.15 Пожарный пост должен располагаться на цокольном, первом или втором этажах здания. В соответствии с заданием на проектирование СПА единого недвижимого комплекса пожарный пост допускается не размещать в отдельных зданиях, сооружениях площадью каждого из таких зданий (сооружений) 2000 м и менее, при условии, что все здания (сооружения) единого недвижимого комплекса располагаются на одном земельном участке. В соответствии с заданием на проектирование СПА единого недвижимого комплекса, состоящего из зданий (сооружений) площадью 2000 м и менее, пожарный пост допускается размещать только в одном здании (сооружении).

При размещении пожарного поста на цокольном или первом этаже здания расстояние от пожарного поста до выхода из здания должно быть не более 25 м, при размещении пожарного поста на втором этаже - не более 10 м до выхода на лестничную клетку, имеющую непосредственный выход наружу из здания.

Расстояние от пожарного поста до выхода из здания или лестничной клетки, имеющей непосредственный выход наружу из здания, определяется от ближайшего к выходу или лестничной клетке ППКП, ППУ, ППКПУ, функционального модуля, ИБЭ, размещенного на пожарном посту.

(Измененная редакция, Изм. № 1).

5.16 Пожарный пост может располагаться как в помещениях со схожим назначением, например в диспетчерских пунктах или помещениях контроля за другими инженерными системами, так и в помещениях общего пользования (холлы, вестибюли, коридоры), при условии соблюдения требований к размещению пожарного поста на объекте.

(Измененная редакция, Изм. № 1).

5.17 Линии связи между техническими средствами СПА, управления исполнительными устройствами, а также линии формирования сигналов управления иными инженерными системами объекта (не входящими в СПА) необходимо выполнять с условием обеспечения автоматического контроля их исправности. Допускается не предусматривать автоматический контроль следующих линий связи:

предназначенных для управления нормально открытыми противопожарными клапанами, противопожарными воротами, устройствами удержания противопожарных дверей в открытом положении, если при неисправности данных линий связи указанные клапаны, ворота и двери будут автоматически закрыты;

предназначенных для выдачи сигналов на отключение инженерных систем (общеобменная вентиляция, кондиционирование, бытовое водоснабжение, фоновое озвучивание и рекламные трансляции, отключение энергоснабжения), если при неисправности данных линий связи эти инженерные системы будут отключены;

предназначенное для выдачи сигналов оборудование управления лифтами, эскалаторами и тра-волаторами допускается выполнять без обеспечения автоматического контроля их исправности в случае, если при неисправности данных линий связи указанное оборудование управления лифтами, эскалаторами и траволаторами обеспечит их переход в режим пожарной опасности.

Автоматический контроль линий связи с пиропатронами допускается осуществлять только на обрыв.

(Измененная редакция, Изм. № 1).

5.18 Выбор электрических и оптоволоконных линий связи, способы их прокладки должны проводиться в соответствии с требованиями СП 6.13130, требованиями настоящего свода правил и ТД на приборы и оборудование СПА, а также (при необходимости) в соответствии с нормативными документами, действующими в области взрывозащиты. Шаг креплений линий связи или кабеленесущих систем определяется в соответствии с рекомендациями производителя электрических и оптоволоконных линий связи, кабеленесущих систем.

5.19 При прокладке линий связи за подвесными потолками они должны крепиться по стенам и/или потолкам с выполнением опусков (при необходимости) к подвесному потолку. Не допускается укладка проводов и кабелей на поверхность подвесного потолка.

5.20 Если иное не определено заданием на проектирование, то должен быть предусмотрен запас по емкости ППКП, ППУ, ППКПУ для подключения дополнительных устройств, который может быть задействован при производстве перепланировок или реконструкции в объеме:

20% и более, если планировка и вид отделки определен;

100% и более, если не определена окончательная планировка помещений и возможно дополнительное оборудование помещений фальшполами и подвесными потолками.

           

(Измененная редакция, Изм. № 1).

5.21 СПА не должны выполнять функции, не связанные с противопожарной защитой, за исключением следующих функций, использующих общие исполнительные устройства:

- трансляция музыкальных программ, рекламных и информационных объявлений, иных сообщений, связанных с гражданской обороной и чрезвычайными ситуациями;

- управление водоснабжением объекта;

- управление естественным проветриванием здания;

- управлением общеобменной вентиляцией здания.

Возможность трансляции музыкальных программ, рекламных и информационных объявлений, иных сообщений, связанных с гражданской обороной, чрезвычайными ситуациями, террористическими угрозами, определяется в соответствии с СП 3.13130.

(Измененная редакция, Изм. № 1).

5.22 Численные значения, регламентируемые в настоящем своде правил, могут быть увеличены, но не более чем на 5%.

5.23 На объектах, разделенных на пожарные отсеки, контроль и управление СПЗ каждого пожарного отсека должны осуществляться отельными ППКП, ППУ, ППКУП. Неисправность одного прибора СПА не должна оказывать влияние на работоспособность других приборов СПА.

(Введен дополнительно, Изм. № 1).


6 Системы пожарной сигнализации

     6 Системы пожарной сигнализации

6.1 Общие требования к системам пожарной сигнализации

6.1.1 СПС должна проектироваться с целью выполнения следующих основных задач:

- своевременное обнаружение пожара;

- достоверное обнаружение пожара;

- сбор, обработка и представление информации дежурному персоналу;

- взаимодействие с другими (при их наличии) системами противопожарной защиты (формирование необходимых инициирующих сигналов управления), АСУ ТП, ПАЗ и инженерными системами объекта.

6.1.2 Своевременность обнаружения должна обеспечиваться выбором типа и класса ИП, а также размещением ИП в соответствии с требованиями настоящего свода правил.

6.1.3 Достоверность обнаружения должна достигаться комплексом следующих мероприятий:

- выбором типов пожарных извещателей;

- выбором алгоритма принятия решения о пожаре;

- защитой от ложных срабатываний.

6.1.4 Сбор, обработка и отображение контролируемых сигналов на пожарном посту, а также формирование необходимых сигналов управления в рамках СПА и для иных инженерных систем объекта должны осуществляться ППКП или ППКУП, которые следует выбирать исходя из задач по защите и характеристик конкретного объекта (объектов), а также с учетом требований к ЗКСПС.

(Измененная редакция, Изм. № 1).

6.1.5 Общее количество ИП, подключаемых к одному ППКП, не должно превышать 512, при этом суммарная контролируемая ими площадь не должна превышать 12000 м. Допускается подключение к одному ППКП более 512 ИП и увеличение суммарной контролируемой ими площади до 48000 м, если ППКП имеет защиту от возникновения системной ошибки либо при ее возникновении произойдет потеря связи ППКП не более чем с 512 ИП.

6.1.6 Выбор типа СПС (адресная или безадресная) должен осуществляться в соответствии с приложением А к настоящему своду правил.

(Измененная редакция, Изм. № 1).

6.2 Выбор типов пожарных извещателей

6.2.1 Выбор типа ИП следует проводить на основе характеристик преобладающей горючей нагрузки и преобладающего фактора пожара на его начальной стадии, а также с учетом требований пункта 6.5 настоящего свода правил.

6.2.2 Тепловые пожарные извещатели следует применять, если в ЗКСПС или ее части в случае возникновения пожара на его начальной стадии превалирующим фактором является выделение тепла. В данном случае для контроля помещений могут применяться ИП:

- точечные тепловые;

- линейные тепловые;

- комбинация точечных и линейных тепловых.

(Измененная редакция, Изм. № 1).

6.2.3 Выбор класса тепловых ИП следует проводить в соответствии со значениями условно нормальной и максимальной нормальной температуры окружающей среды в зоне контроля извещателя. Максимальная нормальная температура окружающей среды в зоне расположения тепловых извещателей принимается по максимальному значению температуры в одном из следующих случаев:

- по максимальной температуре, которая может возникнуть по технологическому регламенту либо вследствие аварийной ситуации;

- вследствие нагрева покрытия защищаемого помещения под воздействием солнечной тепловой радиации.

При размещении точечных тепловых ИП в помещениях высотой свыше 6 м и соблюдении требований к условно нормальной и максимальной нормальной температуре окружающей среды в зоне контроля ИП следует применять ИП класса А1, А1R или PR (с температурой срабатывания от 54°C) в соответствии с ГОСТ 34698.

(Измененная редакция, Изм. № 1).

6.2.4 Дифференциальные и максимально-дифференциальные тепловые пожарные извещатели не рекомендуется применять, если в зоне контроля предполагается возникновение перепадов температуры (не связанных с пожаром), способных вызвать срабатывание этих извещателей.

6.2.5 Тепловые пожарные извещатели не рекомендуется применять, если температура в месте установки извещателя при пожаре может не достигнуть температуры срабатывания извещателей или достигнет ее на поздних стадиях горения, например при наличии тлеющей горючей нагрузки.

6.2.6 Дымовые пожарные извещатели следует применять, если в ЗКСПС или ее части в случае возникновения пожара на его начальной стадии предполагается выделение дыма. Для контроля помещений могут применяться ИП:

- точечные дымовые;

- линейные дымовые;

- аспирационные дымовые;

- комбинация точечных, линейных и/или аспирационных дымовых.

При оснащении СПС зданий и помещений, перечисленных в пунктах 3, 7-9, 11, 12, 14, 15 таблицы 1 и пунктах 16-21, 29-32, 35-48 таблицы 3 СП 486.1311500, в качестве автоматических ИП должны применяться дымовые ИП или ИП с каналом обнаружения дыма, при этом помещения для приготовления пищи и чердаки могут быть оснащены ИП иных типов по заданию на проектирование.

(Измененная редакция, Изм. № 1).

6.2.7 Пожарные извещатели пламени следует применять, если в зоне контроля в случае возникновения пожара на его начальной стадии предполагается появление открытого пламени или перегретых поверхностей. Основная область применения пожарных извещателей пламени:

- горение ГЖ и ЛВЖ;

- горение газов;

- горение металлов.

6.2.8 Газовые ИП следует применять, если в ЗКСПС в случае возникновения пожара на его начальной стадии предполагается интенсивное выделение газообразных продуктов горения. Выбор типа газового ИП по его чувствительности к различным газам следует проводить с учетом превалирующих газов, выделяемых горючей нагрузкой, располагаемой в зоне защиты. С учетом того, что наиболее распространенной горючей нагрузкой являются органические соединения, предпочтительно применение газовых ИП, реагирующих на монооксид углерода (СО). Газовые ИП не рекомендуется применять при пламенном горении горючей нагрузки на начальной стадии (ЛВЖ, ГЖ), а также при возможном горении полимерных материалов.

(Измененная редакция, Изм. № 1).

6.2.9 ИП с видеоканалом обнаружения следует применять, если в зоне контроля в случае возникновения пожара на его начальной стадии предполагается появление открытого пламени и/или дыма. Основная область применения аналогична ИП дымовым и пламени.

6.2.10 Если в зоне контроля преобладающий фактор пожара не определен, а также если один из факторов пожара может нарушить работу ИП, основанного на обнаружении другого фактора (например, дым для извещателя пламени, обнаруживающего УФ-излучение пламени), рекомендуется применять комбинацию ИП, реагирующих на различные факторы пожара, комбинированные или мультикритериальные ИП.

6.2.11 Ручные ИП следует применять для ручного формирования тревожного сигнала при визуальном обнаружении пожара человеком.

6.2.12 Для СПС должны применяться ИП, отображающие как минимум два режима работы: дежурный и тревожный. Отображение режима работы должно осуществляться средствами встроенной или выносной оптической индикации ИП. Для ИП, размещаемых во взрывоопасных средах, требование рекомендуемое.

6.2.13 ИП, устанавливаемые скрыто, например в пространствах за подвесным потолком, под фальшполом, внутри технологического оборудования, внутри вентканалов и других, должны быть сгруппированы в ЗКСПС аналогично (в вертикальной проекции) основным объемам контролируемых помещений либо к данным извещателям должны быть подключены ВУИ, при этом ВУИ должны быть размещены в зоне свободной видимости.

В случае размещения воздухозаборных труб с отверстиями аспирационного ИП в скрытом пространстве использование ВУИ не требуется, при этом пространство за подвесным потолком (под фальшполом) должно контролироваться отдельным каналом обнаружения аспирационного ИП.

(Измененная редакция, Изм. № 1).

6.2.14 СПС жилых зданий следует проектировать в соответствии с приложением Б к настоящему своду правил.

(Измененная редакция, Изм. № 1).

6.2.15 (Исключен, Изм. № 1).

6.2.16 (Исключен, Изм. № 1).

           

6.3 Зоны контроля пожарной сигнализации

6.3.1 Деление объекта на ЗКСПС и размещение ИПР должно проводиться для целей определения места возникновения пожара и автоматического формирования (при обнаружении пожара) ППКП или ППКУП сигналов управления СПА, инженерным и технологическим оборудованием.

(Измененная редакция, Изм. № 1).

6.3.2 Деление объекта на ЗКСПС и размещение ИПР должно учитывать размеры объекта и наличие других ЗПЗ.

При отсутствии деления объекта на ЗПЗ, например в случае опережения проектирования СПС перед другими системами противопожарной защиты, формирование ЗКСПС следует проводить исходя из соображений деления объекта на их максимально возможное количество.

           

(Измененная редакция, Изм. № 1).

6.3.3 В отдельные ЗКСПС должны быть выделены:

а) квартиры, гостиничные номера, жилые комнаты общежитий и иные помещения, которые находятся во временном или постоянном пользовании физическими или юридическими лицами на правах собственности или аренды;

б) лестничные клетки, кабельные и лифтовые шахты, шахты мусоропроводов, а также другие помещения или пространства, которые соединяют два и более этажа;

в) коридоры, в которые предусмотрен выход из двух и более пожарных отсеков;

г) пространства над фальшпотолками (с учетом положений пункта 6.2.13 настоящего свода правил);

д) пространства под фальшполами (с учетом положений пункта 6.2.13 настоящего свода правил);

е) обособленные помещения или группы обособленных помещений.

Требование распространяется для случаев, когда контроль СПС данных помещений и пространств необходим в соответствии с СП 486.1311500 или иными нормативными документами по пожарной безопасности.

Примечание - Комментарии к данному пункту приведены в пункте В.1 приложения В к настоящему своду правил.

(Измененная редакция, Изм. № 1).

6.3.4 ЗКСПС должны одновременно удовлетворять следующим условиям:

площадь одной ЗКСПС не должна превышать 2000 м;

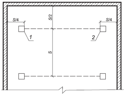
одна ЗКСПС должна включать в себя не более 5 смежных и изолированных помещений, расположенных на одном этаже объекта и в одном пожарном отсеке, при этом изолированные помещения должны иметь выходы, расположенные на расстоянии не более 10 м друг от друга (не более 50 м в общей сложности), в общий коридор, холл, вестибюль, на улицу и иные, а их общая площадь не должна превышать 500 м.

Все помещения квартиры, апартамента или гостиничного номера допускается объединять в одну ЗКСПС вне зависимости от суммарной площади всех помещений, в том числе для многоуровневой квартиры, апартамента или гостиничного номера.

Примечание - Комментарии к данному пункту приведены в пункте В.2 приложения В к настоящему своду правил.

(Измененная редакция, Изм. № 1).

6.3.5 Единичная неисправность в линии связи между техническими средствами СПС или линии электропитания технических средств СПС не должна приводить к потере связи более чем с 24 автоматическими ИП, более чем с 1 ИПР, а также одновременной потере автоматических и ручных ИП.

Единичная неисправность в линии связи между техническими средствами СПС или линии электропитания технических средств СПС не должна приводить к потере связи с ИП более чем 1 ЗКСПС.

(Введен дополнительно, Изм. № 1).

6.3.6 ИПР не должны входить в состав технических средств, работающих в ЗКСПС. Сигналы, формируемые от ИПР, должны иметь равнозначный статус (с учетом положений раздела 7 настоящего свода правил) по сравнению с сигналами, формируемыми из ЗКСПС.

(Введен дополнительно, Изм. № 1).

6.4 Алгоритмы принятия решения о пожаре

6.4.1 Принятие решения о возникновении пожара в заданной ЗКСПС должно осуществляться по одному из алгоритмов: A, B или C. Также принятие решения о возникновении пожара должно осуществляться при срабатывании ИПР (с учетом положений раздела 7 настоящего свода правил). Для разных частей (помещений) объекта допускается использовать оба способа принятия решения о пожаре. Для разных ЗКСПС одного помещения допускается использовать разные алгоритмы.

(Измененная редакция, Изм. № 1).

6.4.2 Алгоритм А должен выполняться при срабатывании одного ИП без осуществления процедуры перезапроса.

(Измененная редакция, Изм. № 1).

6.4.3 Алгоритм B должен выполняться (один из вариантов):

при срабатывании автоматического ИП и дальнейшем повторном срабатывании этого же ИП за время не более 60 с, после процедуры автоматического перезапроса;

при срабатывании автоматического ИП и (или) дальнейшем повторном срабатывании этого же ИП за время не более 60 с, после процедуры автоматического перезапроса, или срабатывании другого автоматического ИП той же ЗКСПС за время не более 60 с от момента срабатывания первого ИП той же ЗКСПС.

В качестве ИП для алгоритма B могут применяться автоматические ИП любого типа при условии информационной и электрической совместимости для корректного выполнения процедуры перезапроса.

(Измененная редакция, Изм. № 1).

6.4.4 Алгоритм С должен выполняться при срабатывании одного автоматического ИП и дальнейшем срабатывании другого автоматического ИП той же или другой ЗКСПС, расположенного в этом помещении.

При использовании адресных автоматических ИП и получении сигнала "Неисправность" от одного или нескольких адресных автоматических ИП в помещении допускается формировать сигнал "Пожар" при срабатывании одного адресного автоматического ИП.

При использовании безадресных автоматических ИП, подключенных в разные, но взаимозависимые линии связи одной ЗКСПС, в случае наличия извещения о неисправности одной линии связи или нескольких из них допускается формировать сигнал "Пожар" при срабатывании одного безадресного автоматического ИП.

(Измененная редакция, Изм. № 1).

6.4.5 Выбор конкретного алгоритма осуществляется проектной организацией или согласно заданию на проектирование, при условии, что алгоритмы A и B могут применяться только для ЗКСПС, которые не формируют сигналы управления АУП. Сигналы управления АУП могут быть сформированы от ИПР при условиях, оговоренных в настоящем своде правил.

(Измененная редакция, Изм. № 1).

6.5 Защита от ложных срабатываний

6.5.1 Защиту от ложных срабатываний следует обеспечивать одним или комбинацией следующих мероприятий:

выбором типа и класса ИП;

применением ИП, не реагирующих на факторы, схожие, но не связанные с пожаром и присутствующие при нормальном функционировании объекта (пыль, пар, резкие перепады температуры (например, при открытии дверей), сценический дым, дым и излучение от сварочных работ, солнечное излучение и другие);

использованием мультикритериальных ИП;

применением экранированных кабелей, кабелей типа "витая пара", оптоволоконных линий связи;

использованием для принятия решения о пожаре алгоритмов B или C;

равномерным распределением ИП по площади при использовании алгоритма C и соблюдении минимального расстояния между ИП не менее 1,2 метра (установка извещателей на меньшем расстоянии допускается только в случаях, если не могут быть одновременно с этим выполнены иные требования настоящего свода правил по размещению ИП);

размещением ИП пламени или ИП с видеоканалом обнаружения с разных направлений к зоне контроля при использовании алгоритма C.

           

(Измененная редакция, Изм. № 1).

6.5.2 Тепловые ИП не следует устанавливать над источниками тепла (радиаторы, нагретые в нормальном состоянии агрегаты), а также рядом с помещениями, открытие дверей в которые может привести к повышению температуры (помещения саун, кухонь, тепловых камер и т.п.).

6.5.3 Газовые ИП не следует применять для помещений при наличии в нормальном состоянии газов с концентрациями, которые могут вызвать их ложное срабатывание, а также при пламенном горении горючей нагрузки.

6.5.4 В местах, где ИПР могут подвергаться случайным или злонамеренным действиям (в жилых домах, зданиях образовательных организаций и других), рекомендуется применять ИПР класса B или ИПР с откидной прозрачной крышкой, предусмотренной ТД изготовителя ИПР.

(Измененная редакция, Изм. № 1).

6.6 Размещение пожарных извещателей

6.6.1 Для реализации алгоритмов А и В в ЗКСПС защищаемое помещение должно контролироваться не менее чем (один из вариантов):

- двумя автоматическими безадресными ИП при условии, что каждая точка помещения (площадь) контролируется двумя ИП;

- одним автоматическим адресным ИП при условии, что каждая точка помещения (площадь) контролируется одним ИП.

(Измененная редакция, Изм. № 1).

6.6.2 Для реализации алгоритма С защищаемое помещение должно контролироваться не менее чем двумя автоматическими ИП при условии, что каждая точка помещения (площадь) контролируется не менее чем двумя ИП.

(Измененная редакция, Изм. № 1).

6.6.3 При размещении ИП в помещениях с колоннами, наличием выступов от стен или углублений в стенах, в местах поворотов стен следует учитывать требования пунктов 6.6.5, 6.6.9 настоящего свода правил.

(Измененная редакция, Изм. № 1).

6.6.4 По решению проектной организации, согласованному с собственником (застройщиком, техническим заказчиком) здания, сооружения, или на основании задания на проектирование может быть установлено большее количество (дублирующие) ИП, чем требует контролируемая площадь или выбранный алгоритм.

Примечание - Комментарии к данному пункту приведены в пункте B.3 приложения В к настоящему своду правил.

(Измененная редакция, Изм. № 1).

6.6.5 Площадь (каждая точка) помещения считается полностью контролируемой автоматическими ИП, если габариты помещения в проекции на горизонтальную плоскость не выходят за рамки зон контроля автоматических ИП конкретного типа. При контроле оборудования или сооружений ИП пламени также следует учитывать высоту оборудования (сооружения).

Для точечных ИП зона контроля представляет собой круг. Для аспирационных ИП зоной контроля является совокупность зон контроля воздухозаборных отверстий, которые аналогичны дымовым точечным ИП.

Для аспирационных ИП воздухозаборные отверстия приравниваются к дымовым точечным ИП только в части, касающейся требований к их размещению (с учетом специальных требований к аспирационным ИП, изложенным в настоящем своде правил). Остальные требования (требования к ЗКСПС, контроль каждой точки двумя ИП, реализация алгоритмов принятия решения о пожаре и прочие) применяются к аспирационным ИП в целом.

Для линейных ИП зона контроля представляет собой протяженный симметричный (относительно проекции чувствительного элемента теплового линейного ИП или оптической оси дымового линейного ИП на горизонтальную плоскость) участок шириной, равной двум радиусам зоны контроля для тепловых линейных ИП, и 9 м - для дымовых линейных ИП. Длина зоны контроля определяется техническими характеристиками линейного ИП конкретного типа. Для ИПДЛ длина зоны контроля определяется с учетом положений пункта 6.6.18 настоящего свода правил.

Для линейных многоточечных тепловых ИП зона контроля представляет собой совокупность зон контроля чувствительных элементов, аналогичных зонам контроля тепловых точечных ИП.

                

(Измененная редакция, Изм. № 1).

6.6.6 Площадь и форма зоны контроля ИП пламени и ИП с видеоканалом обнаружения определяется исходя из значения угла обзора извещателей, указанного в ТД производителя, и расстояния между ИП и контролируемой поверхностью.

При использовании указанных ИП для локального обнаружения пожара (возгорание агрегатов, установок и т.п.) требование к контролю каждой точки защищаемого помещения не предъявляется.

6.6.7 Точечные ИП над подвесным потолком с перфорацией могут использоваться для контроля пространства под этим подвесным потолком при одновременном выполнении следующих условий:

площадь перфорации в проекции на зону контроля ИП составляет не менее 40% от площади зоны контроля ИП;

минимальный размер каждой перфорации в любом сечении - более 10 мм;

толщина перфорации - не более чем в три раза превышает минимальный размер ячейки перфорации.

Если не выполняется хотя бы одно из этих требований, ИП должны быть установлены под подвесным потолком и в случае необходимости контроля пространства над подвесным потолком извещатели должны быть над ним.

                

(Измененная редакция, Изм. № 1).

6.6.8 Допускается встраивание воздухозаборных труб аспирационных ИП в строительные конструкции или элементы отделки помещения с сохранением доступа к воздухозаборным отверстиям. Трубы аспирационного ИП могут располагаться как за подвесным потолком, так и под фальшполом с забором воздуха через капиллярные трубки, проходящие через фальшпол/навесной потолок с выводом воздухозаборного отверстия в основное пространство помещения.

6.6.9 При невозможности установки ИП непосредственно на перекрытии допускается их установка на тросах, а также стенах, колоннах и других строительных конструкциях, на оборудовании инженерных систем, если это не противоречит требованиям нормативных документов по данным инженерным системам и ТД изготовителей инженерного оборудования. При этом должно быть обеспечено устойчивое положение и ориентация ИП в пространстве в соответствии с ТД изготовителя. При установке ИП на стене их следует располагать на расстоянии не менее 100 мм от ИП до угла между стенами, а также до угла между стеной и потолком. При установке ИП на потолке их следует располагать на расстоянии не менее 500 мм от ИП до угла между стеной (перегородкой) и потолком.

Примечание - Графический материал к данному требованию приведен на рисунке Г.1 приложения Г к настоящему своду правил.

(Измененная редакция, Изм. № 1).

6.6.10 Сателлитные ИП допускается устанавливать с использованием приспособлений и конструкций, предусмотренных ТД производителя сателлитных ИП, с креплением непосредственно к трубопроводу пожаротушения для обеспечения необходимой близости к СО-ПП, а также с учетом соблюдения требований по расстоянию между ИП и перекрытием. При этом должны быть обеспечены их устойчивое положение, ориентация в пространстве и защита от попадания брызг, капель огнетушащих веществ.

6.6.11 При наличии подвесного потолка ИП могут устанавливаться непосредственно на подвесной потолок или в специальные монтажные комплекты, устанавливаемые на подвесном потолке (плитах или панелях потолка). Возможность использования данных комплектов должна быть предусмотрена ТД на ИП. Монтажные комплекты для натяжных потолков должны крепиться к основному перекрытию при помощи кронштейнов, тросов и т.п. в соответствии с ТД изготовителей монтажных комплектов.

(Измененная редакция, Изм. № 1).

6.6.12 Расстояние от уровня перекрытия (уровня подвесного или натяжного потолка) до чувствительного элемента точечного ИП (верхнего края захода тепловых, дымовых или газовых потоков в корпус ИП) в месте его установки, в том числе при установке в специальные монтажные комплекты для подвесного или натяжного потолка, должно быть не менее 25 мм, не более 600 мм - для дымовых ИП и не более 150 мм для тепловых ИП. Рекомендуется размещать ИП при наименьшем допустимом расстоянии между чувствительным элементом и уровнем перекрытия (уровнем подвесного или натяжного потолка). Требование не распространяется для аспирационных ИП.

6.6.13 Минимальное расстояние от уровня перекрытия (уровня подвесного или натяжного потолка) до воздухозаборного отверстия аспирационного ИП не регламентируется. Максимальное расстояние должно быть не более 900 мм.

6.6.14 При размещении ИП на высоте более 6 м, а также под фальшполами и над подвесными (подшивными, натяжными) потолками должен быть определен вариант(ы) доступа к ИП для обслуживания и ремонта.

6.6.15 Точечные тепловые ИП следует применять для защиты помещений высотой до 9 м включительно, при этом радиус зоны контроля точечных тепловых ИП должен составлять не более 3,5 м.

(Измененная редакция, Изм. № 1).

           

6.6.16 Точечные дымовые ИП следует применять для защиты помещений высотой до 12 м включительно, при этом радиус зоны контроля точечных дымовых ИП должен составлять не более 6,4 м.

(Измененная редакция, Изм. № 1).

           

6.6.17 Размещение чувствительных элементов линейных (многоточечных) тепловых ИП аналогично требованиям к размещению точечных тепловых извещателей.

При необходимости дополнительного (наряду с размещением ИП на перекрытии) контроля стеллажей охранением продукции, материалов допускается прокладывать чувствительный элемент ИП по верху ярусов и стеллажей.

6.6.18 Линейные дымовые ИП следует применять для защиты помещений высотой до 21 м. Расстояние между оптической осью извещателя и стеной должно составлять не более 4,5 м, между оптическими осями - не более 9,0 м. При расположении оптических осей под углами максимальное расстояние между ними, а также между ними и стенами определяется по проекции на горизонтальную плоскость.

Расстояние от перекрытия до оптической оси ИП должно быть от 25 до 600 мм.

Допускается оптические оси размещать ниже 600 мм при условии, что расстояние между оптическими осями ИП должно составлять не более 25% от высоты установки извещателей, а расстояние между оптическими осями и стеной - не более 12,5% высоты установки ИП. При этом расстояние (по вертикали) до пожарной нагрузки должно быть не менее 2 м.

Излучатель и приемник (приемопередатчик и отражатель) линейного дымового ИП следует размещать таким образом, чтобы в зону обнаружения при его эксплуатации не попадали различные объекты. Минимальное и максимальное расстояния между излучателем и приемником либо излучателем и отражателем, а также минимальное расстояние между оптическими осями ИП и между оптическими осями и стенами (окружающими предметами) определяется ТД на извещатели конкретных типов.

Не рекомендуется применять линейные дымовые ИП, если не обеспечена стабильность оптической связи пары излучатель - приемник. Установка линейных дымовых ИП на сэндвич-панели запрещается.

При невозможности размещения линейных дымовых ИП на стене они могут быть закреплены на расстоянии между стеной и излучателем и (или) приемником (отражателем), равном не более четверти допустимого расстояния между оптическими осями линейных дымовых ИП.

Примечание - Графический материал к данному требованию приведен в пункте Г.2 приложения Г к настоящему своду правил.

(Измененная редакция, Изм. № 1).

6.6.19 Контролируемую извещателем пламени площадь помещения или оборудования следует рассчитывать исходя из максимально допустимого расстояния между контролируемой поверхностью и ИП, определяемого с учетом класса чувствительности и значения угла обзора извещателя, приведенного в ТД на ИП.

(Измененная редакция, Изм. № 1).

6.6.20 ИП с видеоканалом обнаружения следует размещать:

- с каналом обнаружения по пламени - аналогично извещателям пламени;

- с каналом обнаружения дыма - по ТД изготовителя.

6.6.21 Аспирационные дымовые ИП рекомендуются для контроля больших открытых пространств и высоких помещений: атриумы, производственные цеха, складские помещения, торговые залы, пассажирские терминалы, спортивные залы и стадионы, цирки, экспозиционные залы музеев, галерей и т.п.

Для защиты помещений с большой концентрацией электронной техники (серверные, АТС, центры обработки данных и т.п.) рекомендуется применять аспирационные дымовые ИП не ниже класса А.

Для защиты агрегатов, механизмов, серверных стоек, стеллажей и подобного оборудования рекомендуется располагать воздухозаборные отверстия (в том числе с использованием капиллярных трубок) внутри или непосредственной близости от защищаемого оборудования.

6.6.22 Соответствие аспирационного дымового ИП требуемому классу чувствительности (А, В, С) для конкретной конфигурации воздухозаборной системы, сформированной для конкретного объекта, определяется согласно ТД производителя.

6.6.23 Аспирационные ИП применяются для контроля помещений высотой до 30 м. Радиус зоны контроля воздухозаборного отверстия аспирационного ИП составляет 6,4 м. Класс аспирационного ИП в зависимости от высоты контролируемого помещения определяется в соответствии с таблицей 6.1.

Таблица 6.1

Класс чувствительности аспирационного извещателя Максимальная высота контролируемого помещения, м
Класс A 30
Класс B 18
Класс C 12

Допускается применение аспирационных дымовых ИП для контроля высокостеллажных складов в помещениях высотой до 40 м; при этом воздухозаборные отверстия следует располагать в два уровня:

воздухозаборные отверстия аспирационного дымового ИП не ниже класса B на высоте не более 30 м (под ярусами стеллажей);

воздухозаборные отверстия аспирационного дымового ИП класса A на высоте не более 40 м (под перекрытием).

Высота помещения принимается по наиболее высокой его части.

           

(Измененная редакция, Изм. № 1).

6.6.24 В случае установки блока обработки аспирационного дымового ИП вне защищаемого помещения рекомендуется предусмотреть возврат проб воздуха в защищаемое помещение.

6.6.25 Размещение газовых ИП должно осуществляться аналогично ИП дымовым точечным.

При применении газовых ИП для защиты наружных установок расстановка извещателей производится в соответствии с рекомендациями производителя оборудования.

6.6.26 Размещение автономных ИП должно осуществляться аналогично ИП точечным с соответствующим каналом обнаружения.

(Измененная редакция, Изм. № 1).

6.6.27 ИПР следует устанавливать на путях эвакуации, у выходов из зданий, в вестибюлях, холлах.

ИПР не должны устанавливаться на лестничных клетках, за исключением случаев, когда по сигналам от данных ИПР формируются сигналы управления СПА и инженерным оборудованием, участвующим в обеспечении пожарной безопасности объекта в целом.

Если при проектировании СПС окончательная планировка помещений не установлена, то максимальное расстояние по прямой линии между любой точкой здания и ближайшим ИПР не должно превышать 30 м.

При наличии окончательной планировки или ее изменения ИПР следует устанавливать на расстоянии:

не более 45 м - друг от друга внутри зданий;

не более 100 м - друг от друга вне зданий;

не более 30 м - от ИПР до выхода из любого помещения.

ИПР следует устанавливать на стенах и конструкциях на высоте (1,5±0,1) м от уровня земли или пола до органа управления (рычага, кнопки и других).

Корпус ИПР при углубленном монтаже должен выступать от поверхности монтажа на расстояние не менее 15 мм.

           

(Измененная редакция, Изм. № 1).

6.6.28 Расстояние между сателлитным ИП и сопряженным с ним оросителем (распылителем) по горизонтали - не более 0,5 м, по вертикали - не регламентируется.

6.6.29 Электроиндукционные ИП рекомендуется применять для защиты помещений с большой концентрацией электронной техники: серверные, АТС, центры обработки данных и т.п.

Требования по размещению электроиндукционных ИП в помещениях аналогичны требованиям по размещению точеных дымовых ИП.

Электроиндукционные ИП могут быть применены для контроля возгорания электропроводки в электротехнических шкафах объемом не более 1 м при отсутствии в них принудительной вентиляции.

Размещение электроиндукционных ИП допускается проводить в любом месте электротехнического шкафа, при этом конструктивно шкаф должен иметь единый объем не более 1 м (без сплошных разделительных перегородок).

6.6.30 В случае установки в одной зоне контроля разнотипных ИП их размещение проводится в соответствии с требованиями настоящего свода правил применительно к каждому типу извещателя.

6.6.31 При применении точечных комбинированных и мультикритериальных ИП с тепловым каналом обнаружения, если преобладающий фактор пожара не определен или преобладающим фактором пожара является выделение тепла, а также в случае, если для срабатывания ИП обязательно тепловое воздействие для выбранного режима работы мультикритериального извещателя, их размещение проводится согласно требованиям к тепловым ИП. Если преобладающим фактором пожара является дым и в ИП имеется дымовой канал обнаружения, то размещение таких ИП проводится согласно требованиям к дымовым ИП.

При определении количества извещателей комбинированный или мультикритериальный ИП учитывается как один извещатель.

           

(Измененная редакция, Изм. № 1).

6.6.32 Расстояние от точечного ИП до вентиляционного отверстия должно быть не менее 1 м. Извещатель может быть установлен на более близком расстоянии от вентиляционного отверстия вытяжной вентиляции, если расчетная скорость воздушного потока в месте установки извещателя не превышает 1,0 м/с.

При расчетных скоростях воздушного потока вытяжной вентиляции более 1,0 м/с ИП следует устанавливать на расстоянии более 1 м от вентиляционного отверстия или внутри вентиляционного канала с помощью специализированных монтажных комплектов (только для дымовых извещателей) или снаружи вентиляционного канала при помощи специальных приспособлений, монтируемых непосредственно на вентиляционном канале и забирающих пробы из потока удаляемого воздуха, при этом монтаж следует осуществлять в соответствии с рекомендациями, изложенными в ТД изготовителя данного монтажного комплекта.

В случае применения аспирационных ИП расстояние от их воздухозаборных отверстий до вентиляционного отверстия регламентируется величиной допустимой скорости воздушного потока для данного типа ИП в соответствии с ТД на извещатель. При допустимой скорости воздушного потока разрешается размещение воздухозаборных отверстий в следующих местах: на решетках входа горячего воздуха в системы прецизионного кондиционирования, в местах выхода горячего воздуха из активного оборудования, под перекрытиями изолированных "горячих" коридоров, в местах входа горячего воздуха в установки межстоечного кондиционирования, на воздухозаборных решетках систем вытяжной вентиляции. При расчете количества всасывающих отверстий в этом случае исходить из максимально допустимого соотношения: одно отверстие на 0,4 м решетки.

6.6.33 (Исключен, Изм. № 1).

6.6.34 В местах, где имеется опасность механического повреждения ИП, должна быть предусмотрена защитная конструкция, предусмотренная ТД изготовителя извещателя.

6.6.35 При установке точечных ИП в самом высоком месте наклонного потолка радиусы зоны контроля допускается увеличивать из расчета 1% на каждый 1° наклона, но не более 25%.

Если потолок имеет фигурный профиль, то в этом случае рассчитывается среднее значение наклона.

(Измененная редакция, Изм. № 1).

6.6.36 Минимальное расстояние от точечных ИП и чувствительных элементов теплового линейного ИП до выступающих на 0,25 м и менее от перекрытия строительных конструкций или инженерного оборудования должно составлять не менее двух высот этих строительных конструкций или оборудования. Расстояние от ИП до стен (перегородок), а также других строительных конструкций и до инженерного оборудования, выступающего от перекрытия на расстояние более 0,25 м, должно быть не менее 0,50 м. В случае необходимости размещения извещателей между стенами (выступающими на 0,25 м и более строительными конструкциями и инженерным оборудованием) расстояние от стен (выступающих конструкций) может быть менее 0,5 м, при этом извещатели должны размещаться по центру между стенами (выступающими конструкциями). Допускается сокращение расстояния между извещателем и стеной до 0,1 м в случаях, когда приведенные в данном пункте требования не могут быть выполнены совместно с другими требованиями настоящего свода правил по размещению ИП.

Требования абзаца первого настоящего пункта допускается не соблюдать в помещениях с наличием в припотолочной зоне коробов, труб, лотков или иных инженерных коммуникаций шириной не более 0,5 м, отступающих от потолка на расстояние более 0,1 м (наличие просвета), в случае одновременного выполнения следующих условий:

высота помещения не превышает 4 м;

в помещении отсутствуют системы принудительной вентиляции;

в помещении имеется система отопления либо помещения расположены в отапливаемом здании;

горючей нагрузкой в помещении является ЛВЖ.

Толщина (ширина) шпилек, подвесов, кронштейнов и иных монтажных устройств не учитывается.

Требования абзаца первого настоящего пункта не распространяются на расстояние между двумя ИП в случае их парной установки (рядом друг с другом), а также между ИП и проложенными по потолку линиями связи или кабеленесущими конструкциями (коробами, гофрированными трубами и другие) высотой менее 25 мм.

Примечание - Графический материал к первому предложению данного требования приведен в пункте Г.1 приложения Г к настоящему своду правил.

(Измененная редакция, Изм. № 1).

6.6.37 Расстояния между ИП и объектами, препятствующими распространению дымовых и тепловых потоков в помещении (балки, выступы, оборудование инженерных систем, выступающие светильники, вентиляционные отверстия и т.п.), следует измерять по кратчайшему пути. Расстояние измеряется от центра ИП до ближайшей точки объекта.

6.6.38 Размещение точечных ИП при наличии на потолке линейных балок должно соответствовать таблице 6.2.

Таблица 6.2

Высота перекрытия (округленная до целого числа) Н, м Высота балки, D Максимальное расстояние поперек балок между двумя ИП в разных отсеках (между ИП и стенами, поперек балок), м
    дымовыми тепловыми
Любая Менее 10% H 5,00 (2,50) 3,80 (1,90)
3,00 и менее Более 10% H 2,30 (1,15) 1,50 (1,25)
4,00 Более 10% H 2,80 (1,40) 2,00 (1,00)
5,00 Более 10% H 3,00 (1,50) 2,30 (1,15)
6,00 и более Более 10% H 3,30 (1,65) 2,50 (1,25)

Расстояние между извещателями, устанавливаемыми вдоль линейных балок, определяется согласно значениям радиусов зон контроля соответствующих типов ИП.

Размещение точечных ИП на перекрытиях с продольными и поперечными балками должно соответствовать таблице 6.3.

Таблица 6.3

Высота потолка (округленная до целого числа) H, м Высота балки D Максимальное расстояние до ближайшего дымового (теплового) ИП Размещение извещателя при ширине W4D Размещение извещателя при W>4D
Любая Менее 10% H Как при плоском потолке На нижней плоскости балок На потолке
3,0 и менее Более 10% H 4,5 (3,0)    
4,0 Более 10% H 5,5 (4,0)    
5,0 Более 10% H 6,0 (4,5)    
6,0 и более Более 10% H 6,6 (5,0)    
Примечание - H - высота потолка; W - ширина ячейки; D - высота балки.

(Измененная редакция, Изм. № 1).

6.6.39 При наличии в контролируемом помещении коробов, технологических площадок шириной или диаметром L м и более, имеющих сплошную конструкцию, отстоящую по нижней отметке от потолка на расстояние более 0,4 м и не менее 1,3 м от плоскости пола, под ними необходимо дополнительно устанавливать ИП. При применении тепловых извещателей L=1,0 м. При применении дымовых извещателей L=2,0 м.

6.6.40 Штабели материалов, стеллажи, оборудование и строительные конструкции, размещаемые на полу, верхние отметки которых отстоят от потолка на 0,6 м и менее, следует рассматривать как сплошные перегородки на всю высоту помещения при определении места размещения извещателей.

(Измененная редакция, Изм. № 1).

6.6.41 При установке точечных дымовых или газовых ИП под фальшполом, над фальшпотолком и в других пространствах высотой менее 1,7 м радиус зоны контроля ИП допускается увеличивать в 1,5 раза.

6.6.42 При установке ИП под фальшполом, над фальшпотолком следует рассматривать данные пространства как помещения с высотой, равной высоте пространства.

(Введен дополнительно, Изм. № 1).


7 Автоматизация систем противопожарной защиты

     7 Автоматизация систем противопожарной защиты
     

7.1 Общие требования

7.1.1 Построение СПА не ограничивается требованиями настоящего раздела. При проектировании СПА учитывается следующее:

- различные объекты могут иметь специфические отличия, поэтому могут применяться алгоритмы работы, не регламентированные настоящим сводом правил, в части, не противоречащей ему;

- должны учитываться алгоритмы работы СПЗ, изложенные в сводах правил, для конкретных систем;

- управление СПЗ должно осуществляться при помощи ППУ или ППКУП, часть требований к алгоритмам работы которых изложена в национальных и межгосударственных стандартах, регламентирующих технические требования к ППУ или ППКУП.

(Измененная редакция, Изм. № 1).

7.1.2 Основной задачей СПА является автоматизация сбора, обработки информации, управление в автоматическом и ручном режимах исполнительными устройствами СПЗ по заданному алгоритму, формирование сигналов управления инженерным и технологическим оборудованием, участвующим в обеспечении пожарной безопасности объекта.

(Измененная редакция, Изм. № 1).

7.1.3 СПС должна обеспечивать выдачу инициирующих сигналов управления в следующие системы (при их наличии):

- СОУЭ;

- АУП;

- СПДЗ;

- СПИ;

- СКУД;

- системы инженерно-технического обеспечения зданий, сооружений;

- АСУ ТП, ПАЗ.

(Измененная редакция, Изм. № 1).

7.1.4 Автоматическая активация СПЗ должна осуществляться по сигналам, сформированным СПС, а также по сигналам от АУП, например при срабатывании СПЖ.

(Измененная редакция, Изм. № 1).

7.1.5 ЗКСПС, по сигналу из которой активируется зона защиты (пожаротушения, оповещения и т.п.), должна территориально полностью находиться в данной зоне или совпадать с данной зоной.

Каждая однотипная зона (пожаротушения, оповещения и т.п.) должна быть связана с отдельной ЗКСПС или их группами. Отдельно взятая ЗКСПС не должна взаимодействовать более чем с одной однотипной зоной (пожаротушения, оповещения и т.п.).

Требование не распространяется на автоматизацию СОУЭ, в которой оповещается только дежурный персонал объекта.

Запуск водяных завес должен осуществляться по сигналам от каждой ЗКСПС или ЗПЗ АУП, расположенных с разных сторон от завесы.

(Измененная редакция, Изм. № 1).

7.1.6 Для активации систем противопожарной защиты по сигналам от АУП должны быть определены отдельно идентифицируемые участки АУП, при этом каждый такой участок должен полностью находиться в одной из зон защиты или совпадать с ней. В одной зоне защиты может находиться несколько участков АУП, при этом ни один участок АУП не должен располагаться в двух или более зонах защиты. Данные требования должны выполняться для всех СПЗ, запускаемых по сигналам от АУП.

Идентификация участков АУП может быть осуществлена с помощью узлов управления, СПЖ, спринклерных оросителей с контролем срабатывания или иных технических средств из состава АУП, позволяющих однозначно соотнести сигналы от АУП с зоной защиты запускаемой СПЗ.

(Измененная редакция, Изм. № 1).

7.1.7 Ручное управление системами противопожарной защиты должно осуществляться от органов управления ППУ (или ППКУП), а также от УДП, подключенных к ППУ (или ППКУП), если УДП предусмотрены в соответствии с нормами проектирования конкретной системы противопожарной защиты.

7.1.8 Если в соответствии с нормативными документами по конкретной системе противопожарной защиты требуется ручное управление от УДП, данные устройства должны размещаться в соответствии с требованиями, указанными в сводах правил, по соответствующим системам противопожарной защиты, а при отсутствии данных требований - в соответствии с настоящим сводом правил.

7.1.9 Активация УДП должна приводить к запуску только той системы, в соответствии с нормативными документами на проектирование которой оно применяется. При необходимости наличия УДП их активация должна осуществляться раздельно для каждой зоны (пожаротушения, противодымной защиты и т.п.).

7.1.10 Требования к высоте установки и углубленного монтажа УДП (при установке УДП вне шкафов пожарных кранов) аналогичны требованиям, установленным для ИПР.

7.1.11 При необходимости участия в алгоритме работы технологических устройств, в том числе технологических устройств систем противопожарной защиты (манометры, датчики положения, сигнализаторы и т.п.), эти системы должны быть оснащены данными устройствами или иметь возможность подключения имеющихся (предусмотренных управляемыми системами).

7.1.12 При проектировании СПА для каждой из управляемых АУП или зон пожаротушения следует предусматривать однократное автоматическое или дистанционное включение из состояния дежурного режима (пуск). Для АУП, имеющих 100% резерв огнетушащих веществ, повторное или первичное аварийное включение, а также активация АУП для пуска огнетушащего состава в другую (по отношению к первичному включению) зону пожаротушения, следует предусматривать только в режиме ручного пуска, если иное не предусмотрено специальными нормативными документами или заданием на проектирование.

(Измененная редакция, Изм. № 1).

7.1.13 Алгоритм работы СПА, включая взаимосвязи систем пожарной сигнализации, противопожарной защиты, инженерных систем, а также порядок их срабатывания, должен быть определен при проектировании согласно требованиям к соответствующим системам в объеме, необходимом для проведения пусконаладочных работ, настройки параметров оборудования и последующих испытаний.

7.1.14 При определении алгоритма работы СПА должна быть учтена территориальная неоднозначность сигнала о пожаре, поступающего от ИПР, так как ИПР может находиться в помещении, отличном от помещения пожара, в том числе находиться территориально в другой ЗПЗ. В данных случаях выбор алгоритма осуществляется проектной организацией или по заданию на проектирование.

(Введен дополнительно, Изм. № 1).

7.1.15 Пуск АУП при получении сигнала о пожаре от ИПР не допускается, за исключением модульных водяных АУП, для которых такая возможность должна быть предусмотрена заданием на проектирование.

(Введен дополнительно, Изм. № 1).

7.1.16 По сигналу о пожаре от ИПР, установленных на лестничных клетках, могут быть сформированы только те сигналы управления СПА и инженерными системами, которые формируются при получении сигналов из любой ЗКСПС или от любой АУП данного пожарного отсека.

(Введен дополнительно, Изм. № 1).

7.2 Автоматизация систем оповещения и управления эвакуацией людей при пожаре

7.2.1 Активация СОУЭ должна осуществляться автоматически по сигналу из ЗКСПС или ЗПЗ АУП, пожар в которой обнаружен средствами СПС или АУП.

(Измененная редакция, Изм. № 1).

7.2.2 Активация СОУЭ должна осуществляться согласно алгоритму (сценарию оповещения), определенному при проектировании СОУЭ.

(Измененная редакция, Изм. № 1).

7.2.3 (Исключен, Изм. № 1).

7.2.4 При наличии сценариев оповещения, т.е. при автоматическом включении зон СОУЭ объекта в заданной последовательности (или по заданному алгоритму) в зависимости от места возникновения пожара, сценарии могут изменяться в процессе их выполнения при поступлении сигналов из ЗКСПС и/или АУП либо при ручном управлении при помощи органов управления ППУ или ППКУП.

(Измененная редакция, Изм. № 1).

7.3 Автоматизация спринклерных автоматических установок пожаротушения без принудительного пуска

7.3.1 Для спринклерных АУП без принудительного пуска формирование сигналов управления из ЗКСПС не требуется.

(Измененная редакция, Изм. № 1).

7.3.2 Сигналы от спринклерных оросителей с контролем срабатывания могут группироваться в зоны, аналогичные ЗКСПС.

(Измененная редакция, Изм. № 1).

7.3.3 Одновременно с переходом в режим "Пожар" ППУ должен выдать сигнал на открытие обводной задвижки водомерного узла (при ее наличии).

7.3.4 Запорная арматура (с электро- и ручным приводами), предусмотренная нормами проектирования систем пожаротушения, должна быть снабжена техническими средствами контроля ее положения, подключаемыми к ППУ или ППКУП.

(Измененная редакция, Изм. № 1).

7.4 Автоматизация спринклерных автоматических установок пожаротушения с принудительным пуском и дренчерных автоматических установок пожаротушения

7.4.1 Автоматическая активация спринклерных АУП с принудительным пуском и дренчерных АУП должна осуществляться по сигналам из ЗКСПС, находящихся в зоне пожаротушения.

(Измененная редакция, Изм. № 1).

7.4.2 Активация дренчерных завес, предназначенных для обеспечения огнестойкости строительных конструкций, противопожарных преград и/или заполнения проемов, может быть осуществлена по сигналам из ЗКСПС или зон пожаротушения в смежных помещениях.

(Измененная редакция, Изм. № 1).

7.4.3 Для спринклерных АУП с принудительным пуском размеры ЗКСПС и количество сателлитных ИП, входящих в нее, должны определяться в зависимости от алгоритма работы АУП, а также с учетом требований настоящего свода правил в части ЗКСПС с автоматическими ИП.

(Измененная редакция, Изм. № 1).

7.4.4 Одновременно с переходом в режим "Пожар" ППУ должен выдать сигнал на открытие обводной задвижки водомерного узла (при ее наличии).

7.4.5 Формирование сигнала управления в автоматическом режиме должно осуществляться при переходе СПС в режим "Пожар" после выполнения алгоритма C либо от собственных средств обнаружения пожара АУП.

(Введен дополнительно, Изм. № 1).

7.5 Автоматизация внутреннего противопожарного водопровода

7.5.1 Активация ВПВ должна автоматически осуществляться одним из следующих способов:

- при падении давления в трубопроводе в результате открытия клапана пожарного крана;

- по сигналу от датчика положения пожарного крана при его открытии;

- по сигналу от УДП, устанавливаемого в шкафу пожарного крана или рядом с ним (на расстоянии не более 0,5 м);

- по сигналу из ЗКСПС (если это не приведет к неисправности ВПВ).

При необходимости может использоваться комбинация способов активации.

(Измененная редакция, Изм. № 1).

7.5.2 При переходе ППУ в режим "Пуск" должен быть выдан сигнал на открытие обводной задвижки водомерного узла (при ее наличии).

7.6 Автоматизация автоматических установок газового, порошкового, аэрозольного, модульного водяного пожаротушения

7.6.1 Автоматическая активация АУП должна осуществляться по сигналу из ЗКСПС, находящихся в зоне пожаротушения или совпадающих с зоной пожаротушения, или от собственных средств обнаружения АУП.

(Измененная редакция, Изм. № 1).

7.6.2 Формирование сигнала управления в автоматическом режиме должно осуществляться при переходе СПС в режим "Пожар" после выполнения алгоритма С.

7.6.3 АУП (кроме модульных водяных, пенных) должны переходить в состояние "Автоматика отключена" с включением соответствующей световой индикации (световое табло с надписью "Автоматика отключена", располагаемое над каждым входом в защищаемое помещение) при открытии дверей, окон и иных проемов, имеющихся в помещениях, защищаемых данными системами. Это должно осуществляться по сигналам от датчиков положения дверей (или иных проемов) либо по сигналам от устройств, выполняющих данные функции.

(Измененная редакция, Изм. № 1).

7.6.4 Возврат в состояние "Автоматика включена" должен осуществляться одним из следующих способов:

- автоматически при закрытии проема в помещении;

- вручную от органов управления ППУ;

- вручную от устройств восстановления автоматики.

Выбор алгоритма возврата в состояние "Автоматика включена" выполняет проектная организация по согласованию с заказчиком. Данный способ должен быть изложен в проектной документации на СПА. При выборе алгоритма возврата в состояние "Автоматика включена" вручную руководитель организации (объекта) должен определить лицо или лиц, уполномоченных на осуществление данных действий с учетом уровней доступа к управлению ППУ.

7.6.5 Защищаемые помещения должны быть снабжены техническими средствами внешней световой индикации и звуковой сигнализации о режимах работы управляемой системы раздельно для каждой зоны пожаротушения. Световая индикация должна обеспечиваться включением пожарных оповещателей (табло с надписью) "Автоматика отключена", "XXX - уходи!", "XXX - не входить!", а звуковая сигнализация - включением звуковых пожарных оповещателей, где XXX - краткое наименование огнетушащего вещества, соответствующего типу управляемой системы, например: "Газ - уходи!", "Порошок - не входить" и т.п. Табло с надписью должны располагаться над каждой дверью, ведущей в защищаемое помещение, при этом:

- табло "Автоматика отключена" и "XXX - не входить!" со стороны входа;

- табло "XXX - уходи!" со стороны выхода.

7.6.6 При наличии в зоне пожаротушения нескольких помещений каждое из них должно быть оснащено внешней световой индикаций и звуковой сигнализацией о режимах работы управляемой системы.

7.6.7 Внешняя световая индикация и звуковая сигнализация о режимах работы управляемой системы помещений, смежных с защищаемыми, выход из которых может быть осуществлен только через защищаемые помещения, должна обеспечиваться и для смежных помещений.

7.6.8 Внешняя звуковая сигнализация о режимах работы управляемой системы является составной частью системы пожаротушения и не отменяет необходимость оснащения защищаемого помещения СОУЭ. При этом должны обеспечиваться следующие требования:

- размещение звуковых оповещателей системы пожаротушения должно осуществляться с учетом обеспечения уровня звука согласно СП 3.13130;

- при возникновении пожара в защищаемом помещении, при начале алгоритма пожаротушения или несанкционированном пуске (при наличии технической возможности контроля) должна активироваться звуковая сигнализация системы пожаротушения данного помещения и СОУЭ объекта.

7.6.9 В соответствии с заданием на проектирование автоматический пуск зоны АУП с применением в качестве огнетушащих веществ огнетушащего газа, огнетушащего порошка или огнетушащего аэрозоля может быть запрещен в случае неисправности линий связи с техническими средствами внешней световой индикации и звуковой сигнализации о режимах работы АУП в данной ЗПЗ пожаротушения.

(Измененная редакция, Изм. № 1).

7.6.10 При наличии технической возможности, например при применении адресных оповещателей, для обеспечения звуковой сигнализации о режимах работы управляемой системы и для обеспечения работы СОУЭ объекта, может быть применено одно и тоже техническое средство (пожарный оповещатель).

7.6.11 При применении речевых пожарных оповещателей для сигнализации о режимах работы управляемой системы пожаротушения планируемое значение временной задержки пуска может быть увеличено на время длительности речевого сообщения.

7.6.12 Требование по наличию внешней световой индикации и звуковой сигнализации о режимах работы управляемой системы для водяного и пенного (кроме АУП пеной высокой кратности) пожаротушения является рекомендуемым.

(Измененная редакция, Изм. № 1).

7.6.13 УДП должны размещаться у каждого входа в защищаемое помещение. УДП допускается размещать у выходов, которые ведут на неохраняемую (неконтролируемую) территорию.

7.6.14 При активации УДП или органов управления пуском ППУ (ППКУП) (вне зависимости от нахождения АУП в состояниях "Автоматика включена" или "Автоматика отключена") пуск АУП должен осуществляться после истечения временной задержки.

(Измененная редакция, Изм. № 1).

7.6.15 Для автоматических установок газового пожаротушения должен быть обеспечен непрерывный контроль давления газа в пусковых баллонах, побудительных трубопроводах и распределительных устройствах при наличии в последних запаса газа для управления (открытие, закрытие устройства и т.п.) с выводом на пожарный пост сигналов о снижении давления ниже минимального значения.

7.7 Автоматизация систем противодымной вентиляции

7.7.1 Автоматическая активация СПДВ должна осуществляться по сигналам из ЗКСПС и/или по сигналам от участков АУП, относящихся к помещениям или их частям, защищаемых данными системами вытяжной противодымной вентиляции, составляющим зону противодымной вентиляции.

(Измененная редакция, Изм. № 1).

7.7.2 При условном делении объекта на дымовые зоны активация СПДВ должна осуществляться автоматически по сигналу из любой ЗКСПС или любого отдельно идентифицируемого участка АУП, относящихся к данным дымовым зонам.

(Измененная редакция, Изм. № 1).

7.7.3 СПА должна учитывать требования СП 7.13130 при совместной работе с системами общеобменной вентиляции, местных отсосов, воздушного отопления и кондиционирования (далее - общеобменной вентиляции).

7.7.4 Частичное или полное отключение систем вентиляции и закрытие/открытие противопожарных клапанов должно осуществляться в соответствии с технологическими требованиями и с учетом требований СП 7.13130, установленными при проектировании систем общеобменной вентиляции и противодымной вентиляции объекта.

В случае, если при проектировании систем общеобменной вентиляции и противодымной вентиляции не определена возможность частичного отключения систем общеобменной вентиляции и закрытия/открытия противопожарных клапанов, данные действия должны осуществляться по всему объекту в целом независимо от его деления на пожарные отсеки при поступлении сигнала "Пожар" из любой ЗКСПС или от любого участка АУП.

(Измененная редакция, Изм. № 1).

7.7.5 УДП должны размещаться в соответствии с требованиями СП 7.13130, а также с учетом положений настоящего свода правил.

7.7.6 Активация СПДВ должна осуществляться согласно первому поступившему сигналу от СПС, АУП или УДП СПДВ в определенной зоне противодымной защиты.

Запуск систем вытяжной и приточной противодымной вентиляции в других зонах защиты при поступлении новых сигналов от СПС, АУП или УДП СПДВ может быть осуществлен только при следующих условиях:

- данный алгоритм работы предусмотрен при проектировании СПДВ;

- системы вытяжной и приточной ПДВ в данных зонах независимы друг от друга или производительности СПДВ достаточно для работы в нескольких зонах противодымной вентиляции одновременно;

- совместная работа СПДВ в нескольких зонах противодымной вентиляции не способствует распространению пожара и продуктов горения.

Во всех остальных случаях запуск СПДВ в других зонах защиты может быть предусмотрен только в ручном режиме с помощью органов управления ППУ (ППКУП) или после выполнения процедуры сброса ППУ (ППКУП).

(Измененная редакция, Изм. № 1).

7.7.7 Помимо исполнительных устройств СПДВ СПА должна осуществлять управление и контроль исполнительных устройств общеобменной вентиляции - противопожарных нормально открытых клапанов, а также иных исполнительных устройств СПДЗ, например противодымные шторы, экраны и т.п.

7.7.8 В случае единичной неисправности линии связи между ППУ и исполнительным устройством или линии электропитания ППУ допускается отказ не более чем одного дымового клапана, дымового люка (в соответствии с СП 7.13130) или вентилятора.

(Введен дополнительно, Изм. № 1).

7.7.9 Не допускается управление исполнительными устройствами систем вытяжной и приточной противодымной вентиляции с механическим побуждением при количестве в пожарном отсеке более чем одной ЗПЗ СПДВ (противодымной защиты) по сигналам, формируемым от ручных ИП, за исключением исполнительных устройств СПДВ, управляемых при обнаружении пожара в любой ЗКСПС данного пожарного отсека, с учетом требований СП 7.13130 по совместной работе систем приточной и вытяжной противодымной вентиляции.

(Введен дополнительно, Изм. № 1).


Приложение А (обязательное). Перечень зданий, сооружений и помещений, подлежащих оснащению безадресными и адресными СПС

Приложение А
(обязательное)

Перечень зданий, сооружений и помещений, подлежащих оснащению безадресными и адресными СПС*

________________

  • Измененная редакция, Изм. № 1.

А.1 Оснащение зданий, сооружений и помещений безадресными и адресными СПС осуществляется в соответствии с таблицей А.1 настоящего свода правил.

При наличии необходимости оснащения объекта безадресной СПС не запрещается оснащение данного объекта адресной СПС.

(Измененная редакция, Изм. № 1).

А.2 Адресной СПС считается при применении адресных ИП. Допускается СПС считать адресной, при подключении к ней безадресных ИП числом не более 5% от общего числа ИП в СПС.

(Измененная редакция, Изм. № 1).

А.3 Подключение безадресных ИП в адресную СПС должно осуществляться в линии связи адресных модулей ввода из условия не более одного ИП в одну линию связи.

(Измененная редакция, Изм. № 1).

Таблица А.1

№ п/п. Наименование зданий, сооружений и помещений Тип СПС
    Безадресная Адресная
1. Здания дошкольных образовательных организаций, специализированных домов престарелых и инвалидов (неквартирные), больницы, психоневрологические больницы, интернаты, спальные корпуса образовательных организаций с наличием интерната и детских организаций (Ф1.1) менее 1500 м 1500 м и более
2. Гостиницы, общежития, спальные корпуса санаториев и домов отдыха общего типа, кемпингов, мотелей и пансионатов (Ф1.2) менее 2000 м 2000 м и более
3. Многоквартирные жилые дома (Ф1.3) при высоте здания менее 28 м при высоте здания более 28 м и более
4. Одноквартирные жилые дома, в том числе блокированные (Ф1.4) + *
5. Театры, кинотеатры, концертные залы, клубы, цирки, спортивные сооружения с трибунами, библиотеки и другие учреждения с расчетным числом посадочных мест для посетителей в закрытых помещениях (Ф2.1) - ++
6. Музеи, выставки, танцевальные залы и другие подобные учреждения в закрытых помещениях (Ф2.2) одноэтажные менее 1000 м двухэтажные и более, а также 1000 м и более
7. Здания организаций торговли (Ф3.1) Менее 3500 м 3500 м и более
8. Здания организаций общественного питания (Ф3.2) Менее 800 м 800 м и более
9. Вокзалы (Ф3.3) - ++
10. Поликлиники и амбулатории (Ф3.4) - ++
11. Помещения для посетителей организаций бытового и коммунального обслуживания с нерасчетным числом посадочных мест для посетителей (Ф3.5) Менее 1000 м 1000 м и более
12. Физкультурно-оздоровительные комплексы и спортивно-тренировочные учреждения с помещениями без трибун для зрителей, бытовые помещения, бани (Ф3.6) + *
13. Объекты религиозного назначения (Ф3.7) + *
14. Здания общеобразовательных организаций, организаций дополнительного образования детей, профессиональных образовательных организаций (Ф4.1) Менее 3000 м 3000 м и более
15. Здания образовательных организаций высшего образования, организаций дополнительного профессионального образования (Ф4.2) Менее 3000 м 3000 м и более
16. Здания органов управления учреждений, проектно-конструкторских организаций, информационных и редакционно-издательских организаций, научных организаций, банков, контор, офисов (Ф4.3) Менее 5000 м 5000 м и более
17. Здания пожарных депо (Ф4.4) + *
18. Производственные здания, сооружения, производственные и лабораторные помещения, мастерские (Ф5.1) с учетом пункта 22 + *
19. Складские здания, сооружения, стоянки для автомобилей без технического обслуживания и ремонта, книгохранилища, архивы, складские помещения (Ф5.2) + *
20. Здания сельскохозяйственного назначения (Ф5.3) + *
21. Иные здания, сооружения, помещения с одновременным пребыванием 50 человек и более - + +
22. Особо опасные, технически сложные и уникальные объекты по [1], подлежащие оснащению СПС - + +
23. Иные объекты, не вошедшие в перечень + *
24. Помещения, оснащаемые АУПТ, активируемые от пожарных извещателей Аналогично зданиям, в которых находится помещение, оснащаемое АУПТ, активируемое от пожарных извещателей
Примечание


знак "++" означает, что требуется применение данного типа СПС;

знак "+" означает, что допускается применение данного типа СПС;

знак "*" означает, что рекомендуется применение данного типа СПС;

знак "-" означает, что запрещается применение данного типа СПС.

Таблица А.1 (Измененная редакция, Изм. № 1).


Приложение Б (обязательное). Проектирование СПС жилых зданий

Приложение Б
(обязательное)

Проектирование СПС жилых зданий

Б.1 Проектирование СПС жилых зданий и размещение ИП следует осуществлять в соответствии с требованиями настоящего свода правил.

Б.2 Для многоквартирных жилых зданий, оснащаемых СПА, СПС следует проектировать на основе ППКП (ППКУП) и ИП, взаимодействующих по линиям связи, а также автономных ИП (при необходимости).

Б.3 ИП, взаимодействующими с ППКП и ППКПУ по линиям связи, следует оснащать все помещения многоквартирных жилых зданий с учетом исключений, регламентируемых СП 486.1311500.

Б.4 Помещения квартиры (кроме кухонь и прихожих) оснащаются дымовыми ИП СПС, кухни и прихожие оснащаются тепловыми ИП СПС. В жилых помещениях (комнатах) ИП СПС могут быть заменены на автономные дымовые ИП в случаях, не противоречащих требованиям иных нормативных документов по пожарной безопасности.

Б.5 Лифтовые холлы, межквартирные коридоры и другие помещения общего пользования (за исключением помещений стоянок автомобилей) должны быть оснащены дымовыми ИП СПС. При необходимости оснащения СПС помещений стоянок автомобилей выбор типа (по контролируемому фактору) ИП, размещаемых в помещениях стоянок автомобилей, определяется проектировщиком.

Б.6 ИПР должны быть оснащены помещения общего пользования, при этом размещение ИПР в каждом помещении общего пользования одного этажа (за исключением помещений, имеющих непосредственный выход наружу из здания) допускается не осуществлять.

Б.7 При отсутствии прихожей в квартире ИП должны быть установлены на расстоянии не более 1 м от входной двери (в проекции на поверхность пола).

Б.8 При оснащении квартиры или одноквартирного жилого здания более чем одним автономным ИП рекомендуется объединять все автономные ИП в сеть (функция солидарного включения) в пределах квартиры или одноквартирного жилого здания.

Б.9 При срабатывании ИП, расположенных в помещениях общего пользования, СПС должна сформировать сигналы на включение СОУЭ секции и СПДВ этажа.

При срабатывании автоматических ИП в помещениях квартиры СПС должна сформировать сигналы на включение СОУЭ этажа.

Приложение Б (Введено дополнительно, Изм. № 1).

           


Приложение В (справочное). Комментарии к отдельным пунктам настоящего свода правил

Приложение В
(справочное)

Комментарии к отдельным пунктам настоящего свода правил

В.1 Комментарии к пункту 6.3.3 настоящего свода правил.

Каждая квартира, каждый апартамент, каждый гостиничный номер, каждая жилая комната общежития должны выделяться в отдельные ЗКСПС.

Помещение или группа помещений с учетом требований пункта 6.3.4 настоящего свода правил, находящиеся в собственности или аренде у одного лица, выделяются в самостоятельные ЗКСПС.

Пространства над фальшпотолками или под фальшполами объединяются в ЗКСПС аналогично объединению основных объемов соответствующих помещений.

В случаях общих пространств над фальшпотолками или под фальшполами такие пространства делятся на ЗКСПС исходя из проекции площадей основных соответствующих помещений на потолок (перекрытие) или пол (покрытие).

Обособленным помещением считается помещение, имеющее один и более выходов только непосредственно наружу из здания, в том числе через тамбур (тамбур-шлюз), и не имеющее прохода внутрь здания (мусоросборные камеры, котельные, насосные и другие).

Группой обособленных помещений считаются смежные помещения, имеющие один общий выход наружу из здания, в том числе через тамбур (тамбур-шлюз), и не имеющие прохода внутрь здания.

В.2 Комментарии к пункту 6.3.4 настоящего свода правил.

В случаях оснащения СПС тамбуров (тамбур-шлюзов) глубиной менее ширины наименьшего дверного полотна вне зависимости от направления открывания дверей допускается не учитывать их площадь при определении суммарной площади одной ЗКСПС и допускается не учитывать их в общем количестве помещений одной ЗКСПС.

Помещение считается изолированным, если имеет отдельный вход (изнутри здания) и не используется для доступа в иное (смежное) помещение.

Смежным помещением считается помещение, имеющее вход в иное помещение.

В.3 Комментарии к пункту 6.6.4 настоящего свода правил.

Применение дублирующих ИП позволяет повысить надежность СПС и целесообразно при возможном ограничении доступа в защищаемые помещения для проведения технического обслуживания или замены неисправных ИП, например, на режимных объектах, в квартирах жилых зданий и других.

Приложение В (Введено дополнительно, Изм. № 1).


Приложение Г (справочное). Графические материалы отдельных требований настоящего свода правил

Приложение Г
(справочное)

Графические материалы отдельных требований настоящего свода правил

Г.1 Графический материал к требованиям пунктов 6.6.9 и 6.6.36 настоящего свода правил представлен на рисунке Г.1.


     1 - ИП, устанавливаемый на потолке; 2 - ИП, устанавливаемый на стене; 3 - область, в которой установка ИП недопустима

     Рисунок Г.1 - Графический материал к требованиям 6.6.9 и 6.6.36

Г.2 Графический материал к требованиям пункта 6.6.18 настоящего свода правил представлен на рисунке Г.2.


     1 - излучатель (излучатель/приемник); 2 - приемник (отражатель); S - расстояние между оптическими осями линейных дымовых ИП

     Рисунок Г.2 - Графический материал к требованиям 6.6.18

Приложение Г (Введено дополнительно, Изм. № 1).


Библиография

Библиография

[1]

Технический регламент Евразийского экономического союза "О требованиях к средствам обеспечения пожарной безопасности и пожаротушения" (ТР ЕАЭС 043/2017)

 

[2]

Федеральный закон от 22 июля 2008 г. № 123-ФЗ "Технический регламент о требованиях пожарной безопасности"

 

[3]

Гражданский кодекс Российской Федерации

 

[4] Градостроительный кодекс Российской Федерации

Библиография (Измененная редакция, Изм. № 1).

УДК 614.842.4:006.354 ОКС 13.220.01
Ключевые слова: обнаружение пожара, система пожарной сигнализации, пожарный извещатель